- 15,900万円
- 2LDK + W | 64.53㎡ | 中目黒駅 | 不可
ファミールヒルズ目黒東山の物件レポート
■立地
最寄り駅は東急東横線の中目黒駅で徒歩9分。中目黒駅からは池尻方面に進み住宅街に抜ける緩やかな坂道を進む道のり。
■住環境
最寄り駅から徒歩9分と程よく離れていて駅周辺にガヤガヤ感も薄れて住環境は良いと思います。アドレスは目黒区東山。周辺は第1種低層住居専用地域内になるので高層建築もなくすっきりした空がよく見える街並みです。
■物件
ファミールヒルズ目黒東山は平成10年築、地上3階建て23邸、丸紅旧分譲のファミールヒルズシリーズです。
道路に面するエントランスは地下1階という捉え方ですが、道路から段差のないフラットアプローチです。エントランスはオートロック対応、宅配ボックスも完備しています。
至ってシンプルな共用部です。シンプルゆえにしっかり清掃が行き届いていて清潔感のあるマンションです。
- 第1種低層住居専用地域内の高台立地で住環境は良い。
- 丸紅旧分譲のファミールヒルズシリーズ
設備・備考等
・オートロック
・宅配ボックス
・エレベーター
・駐車場
:月額 29,000円
~34,000円
・駐輪場
:無償
- エントランスはオートロック対応
- 宅配ボックスも完備しています。
- 地上3階建て地下1階付き23邸
- エントランスは物件で言う地下階、住戸はその上から。
メモ
・ペット飼育:不可
・新耐震基準適合物件
・フラット35利用可能
・大規模修繕工事実施済み
(2015年
8月
施工)
販売中の部屋情報
- 15,900 万円
- 2階 | 2LDK + W | 64.53㎡ | 不可
部屋のPOINT
陽当たり良いよ / ウォークインクローゼット / アフターサービス保証付き / リフォーム済
物件概要
| 種類 | 中古マンション |
|---|---|
| 物件名 | ファミールヒルズ目黒東山 |
| 所在地 |
東京都目黒区東山1-20-6
GoogleMap |
| 交通 | 東急東横線『中目黒』駅徒歩9分 日比谷線『中目黒』駅徒歩9分 |
| 販売価格 | 15,900万円 |
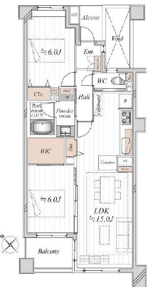
| 間取り | 2LDK + W |
| 専有面積 | 64.53㎡ |
| 管理費 | 10,830円 |
| 修繕積立金 | 12,910円 |
| 現況 | 空室 |
| 構造 | RC造 3階建て |
| 所在階 | 2階 |
| 築年月 | 1998年3月 |
| 総戸数 | 23戸 |
| 施工会社 | 大木建設 |
| 管理会社 | 三菱地所コミュニティ |
| 管理形態 | 全部委託(日勤) |
| 駐車場 | 月額 29,000円 ~ 34,000円 |
| 駐輪場 | 無償 |
| 取引態様 | 仲介 |
| ペット飼育 | 不可 |
| POINT | 中古マンション / 山手線 / 東急東横線 / 中目黒 / 代官山 / 目黒区 / 住環境押し / 近くにコンビニあります / 近くにスーパーあります / 新耐震基準適合 / 大規模修繕工事済み / フラット35 / オートロック / 宅配ボックス / エレベーター / 低層マンション / 一種低層 / 管理状態良いね / 内廊下設計 / ペット不可 |
ローソン 目黒東山店 (211 m)
ファミリーマート 目黒東山一丁目店 (289 m)
セブンイレブン 朝日橋店 (311 m)
まいばすけっと 目黒青葉台1丁目店 (302 m)
ライフ 中目黒店 (417 m)
中目黒本店 東急ストア (525 m)
プレッセ 中目黒店 (546 m)
りそな銀行 中目黒支店 (432 m)
三菱UFJ銀行中目黒支店 (495 m)
西郷山公園 (576 m)
目黒区立烏森小学校 (97 m)
目黒区立東山中学校 (329 m)
ファミリーマート 目黒東山一丁目店 (289 m)
セブンイレブン 朝日橋店 (311 m)
まいばすけっと 目黒青葉台1丁目店 (302 m)
ライフ 中目黒店 (417 m)
中目黒本店 東急ストア (525 m)
プレッセ 中目黒店 (546 m)
りそな銀行 中目黒支店 (432 m)
三菱UFJ銀行中目黒支店 (495 m)
西郷山公園 (576 m)
目黒区立烏森小学校 (97 m)
目黒区立東山中学校 (329 m)
他の物件を探す
幡ヶ谷ベース
営業時間 10:00~20:00
定休日 水曜日
京王新線「幡ヶ谷」駅北口徒歩2分
東京都渋谷区幡ヶ谷2-6-5 梅村ビル7階
営業時間 10:00~20:00
定休日 水曜日
京王新線「幡ヶ谷」駅北口徒歩2分
東京都渋谷区幡ヶ谷2-6-5 梅村ビル7階






LINEでお問い合わせ
スタッフコメント
・2階部分
・専有面積64.53㎡、2LDK間取り
・リフォーム済