- 7,990万円 PriceDown ↓
- 1SLDK + W | 52.38㎡ | 恵比寿駅 | 可
ドルミ恵比寿の物件レポート
■立地
恵比寿通り沿いの物件です。最寄り駅は恵比寿と広尾のちょうど中間あたりでどちらも徒歩9分ほど。恵比寿通りは片道1車線ですが交通量はそこそこあるので部屋位置によっては多少音は感じると思います。気になる人はまずは部屋位置チャックからしましょう。
■交通
山手線他「恵比寿」駅徒歩9分
日比谷線「広尾」駅徒歩9分
■物件
ドルミ恵比寿は1982年築、川商不動産旧分譲の地上6階建て29邸です。新耐震基準に適合しています。管理会社は日本住宅管理株式会社が日勤管理で入っています。
- 恵比寿と広尾を使い分ける立地
- 新耐震基準適合物件です。
設備・備考等
・エレベーター
・インターネット対応
:NTT Bフレッツ
・駐輪場
:有
・バイク置場
:有
- 管理人室
- エレベーター
修繕履歴
・2019年12月 エントランス扉補修
・2018年10月 2階バルコニー手摺ガラス交換工事
・2018年10月 2階バルコニー手摺ガラス交換工事
- オートロックはなし
- 管理人室
メモ
・ペット飼育:可 (細則あり・1住戸2匹まで)
・新耐震基準適合物件
・フラット35利用可能
・大規模修繕工事実施済み
(2003年
12月
施工)
・修繕積立金額:60,904,854円
(2024年
7月
時点)
(学区)
・臨川小学校
・広尾中学校
販売中の部屋情報
- 7,990 万円 PriceDown ↓
- 1階 | 1SLDK + W | 52.38㎡ | 可
部屋のPOINT
フルリノベーション / 過去リノベ履歴あるよ / シングル・DINKS向け / 投資用としてもいいね / だいぶ価格下がってます / 価格下がりました / 1階住戸 / アフターサービス保証付き
物件概要
| 種類 | 中古マンション |
|---|---|
| 物件名 | ドルミ恵比寿 |
| 所在地 |
東京都渋谷区恵比寿3-3-5
GoogleMap |
| 交通 | 山手線他「恵比寿」駅徒歩9分 日比谷線「広尾」駅徒歩9分 |
| 販売価格 | 7,990万円 |
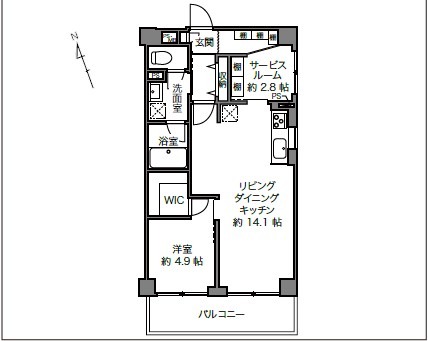
| 間取り | 1SLDK + W |
| 専有面積 | 52.38㎡ |
| 管理費 | 14,400円 |
| 修繕積立金 | 13,360円 |
| 現況 | 空室 |
| 構造 | RC造 6階建て |
| 所在階 | 1階 |
| 築年月 | 1982年6月 |
| 総戸数 | 29戸 |
| 施工会社 | 不二建設 |
| 管理会社 | 日本住宅管理 |
| 管理形態 | 全部委託(日勤) |
| 駐輪場 | 有 |
| バイク置場 | 有 |
| 取引態様 | 仲介 |
| ペット飼育 | 可(細則あり・1住戸2匹まで) |
| POINT | 中古マンション / 山手線 / 目黒 / 恵比寿 / 広尾 / 渋谷区 / 近くにコンビニあります / 近くにスーパーあります / 新耐震基準適合 / フラット35 / エレベーター / 管理状態良いね / ペット可 |
セブンイレブン 渋谷恵比寿3丁目店 (31 m)
ローソン 恵比寿三丁目店 (167 m)
マルエツ プチ 白金台プラチナ通り店 (335 m)
Picard(ピカール) 広尾店 (531 m)
MEIDI-YA STORE広尾ストアー (634 m)
渋谷区立加計塚小学校 (356 m)
ハッピーデイズ・インターナショナル・プレスクール (269 m)
ローソン 恵比寿三丁目店 (167 m)
マルエツ プチ 白金台プラチナ通り店 (335 m)
Picard(ピカール) 広尾店 (531 m)
MEIDI-YA STORE広尾ストアー (634 m)
渋谷区立加計塚小学校 (356 m)
ハッピーデイズ・インターナショナル・プレスクール (269 m)
他の物件を探す
幡ヶ谷ベース
営業時間 10:00~20:00
定休日 水曜日
京王新線「幡ヶ谷」駅北口徒歩2分
東京都渋谷区幡ヶ谷2-6-5 梅村ビル7階
営業時間 10:00~20:00
定休日 水曜日
京王新線「幡ヶ谷」駅北口徒歩2分
東京都渋谷区幡ヶ谷2-6-5 梅村ビル7階





LINEでお問い合わせ
スタッフコメント
・1階ながらも、外からの視線は植栽でやわらかく遮られています。
・南向きの明るさあり
・新規内装フルリノベーション