- 27,000万円
- 1SLDK+W | 72.01㎡ | 神泉駅 | 可
パークホームズ渋谷松濤の物件レポート
■立地
井の頭線の神泉駅が徒歩8分、駒場東大前が徒歩10分、渋谷が徒歩14分の山手通り沿いに位置する物件です。ここは東京でも名高い「渋谷区松濤アドレス」。安定した地盤が形成された武蔵野台地の一角で渋谷駅から高低差約13メートルの高台に位置しています。
■物件
パークホームズ渋谷松濤は三井不動産レジデンシャル分譲の2023年築、地上13階建て55邸のマンションです。
松濤の名に恥じない高級感のあるファサード。質感のある自然石を敷き詰めた贅沢な奥行きを持たせたエントランスアプローチ素敵です。
クロスバイク、ロードバイクを安心して収納できる屋内の縦型駐輪ラックを完備。高級自転車を所有の方も安心ですね。
■備考
・ペット飼育可
- 三井不動産レジデンシャル分譲の2023年築、地上13階建て55邸
設備・備考等
・オートロック
・宅配ボックス
・エレベーター
・駐車場:月額 31,000円 ~ 45,000円
・駐輪場:月額 200円 ~ 1,000円
・バイク置場:月額 1,500円 ~ 3,000円
修繕履歴
・長期修繕計画あり
- 質感のある自然石を敷き詰めた贅沢な奥行きを持たせたエントランスアプローチ
メモ
・ペット飼育:可(細則あり)
・新耐震基準適合物件
・フラット35利用可能
・修繕積立金額:103,170,068円(25年4月時点)
各階ゴミ置き場
販売中の部屋情報
- 27,000万円
- 6階 | 1SLDK + W | 72.01㎡ | 可
部屋のPOINT
そのままでも綺麗! / 陽当たり良いよ / 1億円以上

物件概要
種類 | 中古マンション |
---|---|
物件名 | パークホームズ渋谷松濤 |
所在地 | 東京都渋谷区松濤2-21-3
GoogleMap |
交通 | 井の頭線「神泉」駅徒歩8分 井の頭線「駒場東大前」駅徒歩10分 山手線他「渋谷」駅徒歩14分 千代田線「代々木公園」駅徒歩15分 小田急線「代々木八幡」駅徒歩15分 |
販売価格 | 27,000万円 |
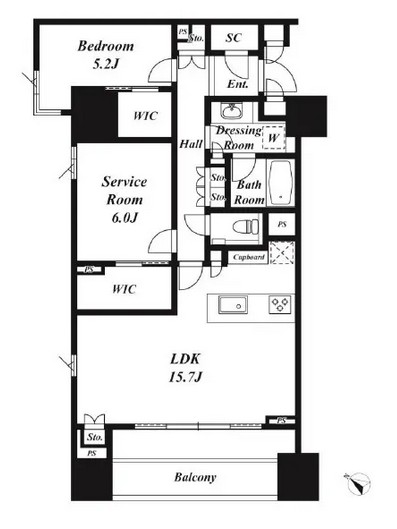
間取り | 1SLDK + W |
専有面積 | 72.01㎡ |
管理費 | 28,660円 |
修繕積立金 | 18,380円 |
その他費用 | 715円 |
現況 | 空室 |
構造 | RC造 13階建て |
所在階 | 6階 |
築年月 | 2023年6月 |
総戸数 | 55戸 |
施工会社 | 佐藤工業 |
管理会社 | 三井不動産レジデンシャルサービス |
管理形態 | 全部委託(日勤) |
駐車場 | 月額 31,000円 ~ 45,000円 |
駐輪場 | 月額 200円 ~ 1,000円 |
バイク置場 | 月額 1,500円 ~ 3,000円 |
取引態様 | 仲介 |
ペット飼育 | 可 |
POINT | 中古マンション / 井の頭線 / 小田急線 / 千代田線 / 山手線 / 代々木八幡 / 代々木公園 / 渋谷 / 神泉 / 駒場東大前 / 渋谷区 / 利便性重視 / 近くにコンビニあります / 築浅 / 新耐震基準適合 / フラット35 / オートロック / 宅配ボックス / STAFFオススメ / エレベーター / 管理状態良いね / ペット可 / パークホームズシリーズ |
・セブンイレブン 神山店 (285 m)
・セブンイレブン 目黒駒場1丁目店 (481 m)
・ローソン 円山町店 (501 m)
・まいばすけっと 駒場1丁目店 (338 m)
・まいばすけっと 駒場東大前駅前店 (525 m)
・鍋島松濤公園 (236 m)
・渋谷区立大向保育園 (419 m)
・渋谷区立松濤中学校 (229 m)
・セブンイレブン 目黒駒場1丁目店 (481 m)
・ローソン 円山町店 (501 m)
・まいばすけっと 駒場1丁目店 (338 m)
・まいばすけっと 駒場東大前駅前店 (525 m)
・鍋島松濤公園 (236 m)
・渋谷区立大向保育園 (419 m)
・渋谷区立松濤中学校 (229 m)
他の物件を探す


幡ヶ谷ベース
営業時間 10:00~20:00
定休日 水曜日
京王新線「幡ヶ谷」駅北口徒歩2分
東京都渋谷区幡ヶ谷2-6-5 梅村ビル7階
営業時間 10:00~20:00
定休日 水曜日
京王新線「幡ヶ谷」駅北口徒歩2分
東京都渋谷区幡ヶ谷2-6-5 梅村ビル7階
スタッフコメント
《幡ヶ谷ベース初掲載》
駒場東大の緑借景の眺望。まだ築浅で室内綺麗にご使用とのことなのでリフォーム不要だと思います。