- 15,480万円 PriceDown ↓
- 2SLDK | 114.32㎡ | 初台・参宮橋駅 | 可
代々木ハイライズの物件レポート
■立地
山手通り、甲州街道の内に入った住宅街の渋谷区代々木4丁目アドレス。最寄り駅は京王新線「初台」駅で徒歩6分。参宮橋で徒歩8分ほどです。
■物件
代々木ハイライズは1974年築(旧耐震基準)、地上6階建て総戸数24邸の中古マンションです。施工は大林組が手掛けました。築年はそこそこ経過していますが管理は良好。マンション全体で豊富な修繕履歴があり清潔感もあります。ただ古いだけの嫌な感じはしません。
真っ白な吹付の外観にタイル貼りの壁面と大判の石材、レッドカーペットが敷かれた共用部はレトロ感があり、好きな人にはたまらないはず。
設備・備考等
・エレベーター
・駐車場:月額 18,000円 ~ 30,000円
・駐輪場:年額 2,400円
・バイク置場:月額 5,000円
修繕履歴
■2007年給排水管更新工事、2013年大規模修繕工事、2016年エレベーター工事と定期的に必要な修繕を実施
メモ
・ペット飼育:可(細則あり)
・大規模修繕工事実施済み(2013年施工)
・ペット飼育可 (細則あり※犬・猫可/1住戸1匹まで/体長・体高70cm以内、体重10kg以内
(学区)
・代々木山谷小学校
・代々木中学校
販売中の部屋情報
- 15,480万円 PriceDown ↓
- 5階 | 2SLDK | 114.32㎡ | 可
部屋のPOINT
フルリノベーション / リノベ完成してるよ / 陽当たり良いよ / 100平米オーバー / バルコニー広め / 1億円以上 / リビング広い / キッチンに窓あるよ / 価格下がりました / 久しぶりの登場だよ / アフターサービス保証付き / 部屋数欲しい人!3LDKです。

物件概要
種類 | 中古マンション |
---|---|
物件名 | 代々木ハイライズ |
所在地 | 東京都渋谷区代々木4-26-15
GoogleMap |
交通 | 京王新線「初台」駅徒歩6分 小田急線「参宮橋」駅徒歩8分 |
販売価格 | 15,480万円 |
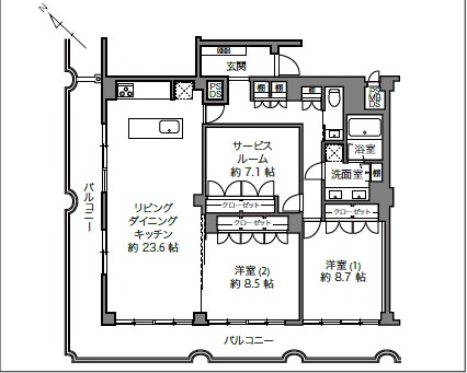
間取り | 2SLDK |
専有面積 | 114.32㎡ |
管理費 | 22,100円 |
修繕積立金 | 29,010円 |
現況 | 空室 |
構造 | RC造 6階建て |
所在階 | 5階 |
築年月 | 1974年4月 |
総戸数 | 24戸 |
施工会社 | 大林組 |
管理会社 | 日鉄コミュニティ |
管理形態 | 全部委託 日勤 |
駐車場 | 月額 18,000円 ~ 30,000円 |
駐輪場 | 年額 2,400円 |
バイク置場 | 月額 5,000円 |
取引態様 | 仲介 |
ペット飼育 | 可 |
POINT | 中古マンション / 京王線・新線 / 小田急線 / 初台 / 参宮橋 / 渋谷区 / 住環境押し / 近くにコンビニあります / 近くにスーパーあります / 旧耐震 / 大規模修繕工事済み / STAFFオススメ / エレベーター / 代々木公園が近いよ / 管理良好ヴィンテージ / 管理状態良いね / ペット可 / 管理優秀 |
・代々木山谷小学校:徒歩8分
・代々木公園:徒歩11分
・成城石井オペラシティ店:徒歩4分
・マルマンストア参宮橋店:徒歩3分
・代々木公園:徒歩11分
・成城石井オペラシティ店:徒歩4分
・マルマンストア参宮橋店:徒歩3分
他の物件を探す


幡ヶ谷ベース
営業時間 10:00~20:00
定休日 水曜日
京王新線「幡ヶ谷」駅北口徒歩2分
東京都渋谷区幡ヶ谷2-6-5 梅村ビル7階
営業時間 10:00~20:00
定休日 水曜日
京王新線「幡ヶ谷」駅北口徒歩2分
東京都渋谷区幡ヶ谷2-6-5 梅村ビル7階
スタッフコメント
・5階部分
・専有面積114.32㎡、2SLDK
・新規内装フルリノベーション済み
・さすが平面で100平米超の大空間。開放感あり。