- 2,480万円
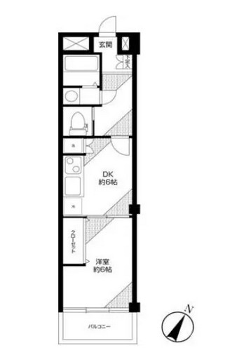
- 1DK | 32.67㎡ | 新中野駅 | 可
新中野マンションの物件レポート
■立地
新中野マンションは最寄り駅の新中野駅(徒歩4分)から中野駅(徒歩10分)へと続く中野通り沿いに立地する物件。
■周辺環境
新中野徒歩4分の立地なので地域密着型の鍋横商店街をはじめ、コンビニ、ドラッグストア、スーパー、飲食店が徒歩圏に充実しているのである程度のものは近所で揃います。ちなみにマンション1階の花は咲く(新中野本店)はうどんの人気店ですよ!
■物件
新中野マンションは1969年築なので旧耐震基準の物件。外観はブルーの吹付と真っ白なバルコニー部分が目を引く雁行型スタイル。分譲は日本中央地所でSRC造地上11階建て総戸数160邸の大型マンションです。
■手厚い管理体制
道路から少し奥まるような構造で広々としたエントランスを潜った先に管理人室。オートロックはないけど管理人さんは24時間常駐体制で窓口対応も8:00-20:00までの手厚さ。これならオートロックがなくても安心だ。まさに高級マンション並みの手厚い管理体制ですね。
■修繕
2019年には定例の大規模修繕工事が実施されました。大規模修繕から日が浅いということもあるだろうけど共用部も本当に綺麗で1969年築にはとても思えない素晴らしいコンディション。2022.4時点でマンション全体の修繕積立金は79,018,085円。立派です。2024年玄関扉交換済み!
設備・備考等
・エレベーター
・駐車場
:月額 25,000円
・駐輪場
:月額 200円
~500円
修繕履歴
・令和2年:消火栓ポンプ更新
・令和元年:大規模修繕工事実施
・令和元年:排水設備更新工事
・平成25年:共用部大規模修繕工事実施
・令和元年:大規模修繕工事実施
・令和元年:排水設備更新工事
・平成25年:共用部大規模修繕工事実施
メモ
・ペット飼育:可 (細則あり)
・大規模修繕工事実施済み
(2019年
施工)
・修繕積立金額:79,018,085円
(2022年
4月
時点)
・桃花小学校、中野中学校学区
販売中の部屋情報
- 2,480 万円
- 10階 | 1DK | 32.67㎡ | 可
部屋のPOINT
過去リノベ履歴あるよ / 陽当たり良いよ / 見晴らし良いよ / シングル・DINKS向け / 投資用としてもいいね / ウォークインクローゼット
物件概要
| 種類 | 中古マンション |
|---|---|
| 物件名 | 新中野マンション |
| 所在地 |
東京都中野区中央4-6-12
GoogleMap |
| 交通 | 丸ノ内線「新中野」駅徒歩4分 JR中央線「中野」駅徒歩10分 |
| 販売価格 | 2,480万円 |
| 間取り | 1DK |
| 専有面積 | 32.67㎡ |
| 管理費 | 13,780円 |
| 修繕積立金 | 7,670円 |
| 現況 | 空室 |
| 構造 | SRC造 11階建て |
| 所在階 | 10階 |
| 築年月 | 1969年10月 |
| 総戸数 | 160戸 |
| 施工会社 | 安藤建設 |
| 管理会社 | サニーライフ |
| 管理形態 | 全部委託 |
| 駐車場 | 月額 25,000円 |
| 駐輪場 | 月額 200円 ~ 500円 |
| 取引態様 | 仲介 |
| ペット飼育 | 可(細則あり) |
| POINT | 中古マンション / 丸の内線 / 新中野 / 中野区 / 近くにコンビニあります / 旧耐震 / 大規模修繕工事済み / 玄関扉も替えてるよ / エレベーター / 管理状態良いね / ペット可 |
セブンイレブン 中野中央中野通り店 (39 m)
ファミリーマート 新中野駅前店 (176 m)
サミットストア 鍋屋横丁店 (340 m)
三徳新中野店 (357 m)
丸正食品 中野鍋横店 (368 m)
コープ中野 中央店 (376 m)
地産マルシェ中野店 (462 m)
桃園川緑道 (405 m)
きらぼし銀行 中野支店 (165 m)
みずほ銀行中野坂上支店 (298 m)
中野区立桃花小学校 (253 m)
東京 中野警察署 (153 m)
桃園幼稚園 (225 m)
ファミリーマート 新中野駅前店 (176 m)
サミットストア 鍋屋横丁店 (340 m)
三徳新中野店 (357 m)
丸正食品 中野鍋横店 (368 m)
コープ中野 中央店 (376 m)
地産マルシェ中野店 (462 m)
桃園川緑道 (405 m)
きらぼし銀行 中野支店 (165 m)
みずほ銀行中野坂上支店 (298 m)
中野区立桃花小学校 (253 m)
東京 中野警察署 (153 m)
桃園幼稚園 (225 m)
他の物件を探す
【NEW】中古マンションALL 方南町・新中野・中野富士見町エリア 中野・新中野・方南町エリア×ペット可 中野・東中野・中野坂上エリア 東中野・中野坂上エリア×ペット可 中野駅 中野富士見町駅 新中野駅 丸ノ内線 中野区
幡ヶ谷ベース
営業時間 10:00~20:00
定休日 水曜日
京王新線「幡ヶ谷」駅北口徒歩2分
東京都渋谷区幡ヶ谷2-6-5 梅村ビル7階
営業時間 10:00~20:00
定休日 水曜日
京王新線「幡ヶ谷」駅北口徒歩2分
東京都渋谷区幡ヶ谷2-6-5 梅村ビル7階










LINEでお問い合わせ
スタッフコメント
10階部分、日当たり眺望良好!シングルにおすすめの専有面積32.67㎡の1DKタイプが登場!2015年にリフォーム履歴あり!