テラス西原の物件レポート
|立地・住環境は
閑静な住宅地で、落ち着いた街並みの渋谷区西原住所。最寄は京王新線の幡ヶ谷で徒歩5分、小田急線、千代田線の代々木上原も徒歩9分の距離です。テラス西原は、幡ヶ谷駅の南口駅前を抜け、緑道脇を通り徒歩5分、近いです。もう日常の買い物で幡ヶ谷は困らせませんよ~。豊富なスーパー、ドラッグストア、コンビニ、ご飯屋さん、カフェ、何でも揃っちゃいます。
|物件は
テラス西原は、3階建ての低層マンションで、オートロック、エレベーターはありません。S51年の物件ですが、フラット35利用可能です。
|特徴
■ 京王新線「幡ヶ谷」駅 徒歩5分
■ 小田急線、千代田線「代々木上原」駅徒歩9分
■ フラット35適合物件
■ スーパー豊富(ダイエー、ライフ、成城石井などなど)
■ 大山公園まで徒歩5分
物件写真

設備・備考等
メモ
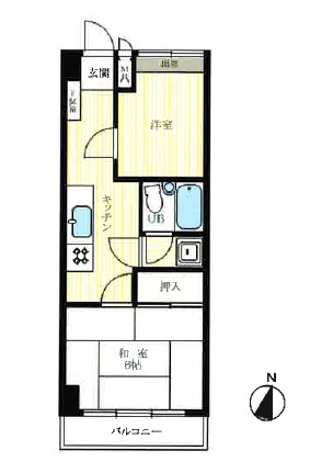
物件概要
| 種類 | 中古マンション |
|---|---|
| 物件名 | テラス西原 |
| 所在地 | 東京都渋谷区西原2-37-7 GoogleMap |
| 交通 | 京王新線「幡ヶ谷」駅徒歩5分 小田急線、千代田線「代々木上原」駅徒歩9分 |
| 構造 | RC造 3階建て |
| 築年月 | 1976年11月 |
| 総戸数 | 24戸 |
| 施工会社 | 日興不動産 |
| 管理会社 | ㈱菱サ・ビルウェア |
| 管理形態 | 全部委託 |
物件のPOINT
(周辺施設)
中古マンション / 京王線・新線 / 小田急線 / 幡ヶ谷 / 代々木上原 / 渋谷区 / 住環境押し / 近くにコンビニあります / 近くにスーパーあります / 旧耐震 / フラット35 / エレベーターなし / 管理状態良いね / 公園が近い
ローソン 渋谷幡ヶ谷一丁目店 (144 m)
ファミリーマート 幡ヶ谷駅南店 (223 m)
ダイエー幡ヶ谷店 (276 m)
ライフ 幡ヶ谷店 (311 m)
幡ヶ谷駅前公園 (294 m)
代々木大山公園 (296 m)
ファミリーマート 幡ヶ谷駅南店 (223 m)
ダイエー幡ヶ谷店 (276 m)
ライフ 幡ヶ谷店 (311 m)
幡ヶ谷駅前公園 (294 m)
代々木大山公園 (296 m)
テラス西原について、
よくあるご質問
テラス西原の最新の販売状況は、 問い合わせフォーム 内の「現在の販売状況が知りたい」よりお問合せいただくか、フリーダイヤル 0120-955-364 までご連絡下さい。
テラス西原の無料売却査定は 問い合わせフォーム より承っています。
テラス西原を貸したい、リフォームしたいなど、その他のお問い合わせは
フリーダイヤル 0120-955-364 までご連絡下さい。
他の物件を探す
【NEW】中古マンションALL 初台・幡ヶ谷・笹塚エリア 初台・幡ヶ谷・笹塚エリア×ペット可 代々木エリア 代々木エリア×ペット可 京王線沿線(代田橋~千歳烏山)エリア 渋谷区 シングル・ディンクス向け
幡ヶ谷ベース
営業時間 10:00~20:00
定休日 水曜日
京王新線「幡ヶ谷」駅北口徒歩2分
東京都渋谷区幡ヶ谷2-6-5 梅村ビル7階
営業時間 10:00~20:00
定休日 水曜日
京王新線「幡ヶ谷」駅北口徒歩2分
東京都渋谷区幡ヶ谷2-6-5 梅村ビル7階
LINEでお問い合わせ

