プラネスーペリア代々木参宮橋の物件レポート
(立地)
最寄りは小田急線の参宮橋で徒歩4分!駅近いですよ~!駅前のメイン通りを一直線!マルマンストアを超えたらもう間もなく到着!
(物件)
スタイリッシュな外観が目を引く低層4階建ての物件「プラネスーペリア代々木参宮橋」。総戸数28戸なので年間通しても中々売りに出てきません!設備等は、セキュリティはダブルオートロック、24時間セキュリティシステム、プライバシー性も高い内廊下設計です!ペット飼育可です!
(特徴まとめ)
- 京王新線「初台」駅徒歩9分
- 小田急線「参宮橋」駅徒歩4分
- ペット飼育(規約あり)
- 低層4階建てマンション
- ダブルオートロック
- 駐車場:月額31,000円~40,000円
物件写真

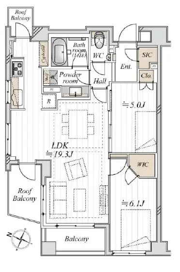
物件概要
| 種類 | 中古マンション |
|---|---|
| 物件名 | プラネスーペリア代々木参宮橋 |
| 所在地 | 東京都渋谷区代々木4-51-7 GoogleMap |
| 交通 | 小田急線「参宮橋」駅徒歩4分 京王新線「初台」駅徒歩9分 |
| 構造 | RC造 4階建て |
| 築年月 | 2010年3月 |
| 総戸数 | 28戸 |
| 施工会社 | 鉄建建設 |
| 管理会社 | 東急コミュニティ |
| 管理形態 | 全部委託 日勤 |
物件のPOINT
(周辺施設)
中古マンション / 京王線・新線 / 小田急線 / 初台 / 参宮橋 / 渋谷区 / 駅近 / 近くにコンビニあります / 近くにスーパーあります / 築浅 / 新耐震基準適合 / フラット35 / オートロック / 宅配ボックス / STAFFオススメ / エレベーター / 低層マンション / 代々木公園が近いよ / 管理状態良いね / ペット不可
セブンイレブン 代々木参宮橋店 (168 m)
ファミリーマート 参宮橋駅前店 (259 m)
マルマンストア 参宮橋店 (79 m)
まいばすけっと 参宮橋駅前店 (221 m)
都立代々木公園西参道口 (379 m)
ファミリーマート 参宮橋駅前店 (259 m)
マルマンストア 参宮橋店 (79 m)
まいばすけっと 参宮橋駅前店 (221 m)
都立代々木公園西参道口 (379 m)
プラネスーペリア代々木参宮橋について、
よくあるご質問
プラネスーペリア代々木参宮橋の最新の販売状況は、 問い合わせフォーム 内の「現在の販売状況が知りたい」よりお問合せいただくか、フリーダイヤル 0120-955-364 までご連絡下さい。
プラネスーペリア代々木参宮橋の無料売却査定は 問い合わせフォーム より承っています。
プラネスーペリア代々木参宮橋を貸したい、リフォームしたいなど、その他のお問い合わせは
フリーダイヤル 0120-955-364 までご連絡下さい。
他の物件を探す
幡ヶ谷ベース
営業時間 10:00~20:00
定休日 水曜日
京王新線「幡ヶ谷」駅北口徒歩2分
東京都渋谷区幡ヶ谷2-6-5 梅村ビル7階
営業時間 10:00~20:00
定休日 水曜日
京王新線「幡ヶ谷」駅北口徒歩2分
東京都渋谷区幡ヶ谷2-6-5 梅村ビル7階
LINEでお問い合わせ




