- 12,980万円
- 3LDK + 納戸 | 71.51㎡ | 中野坂上駅 | 不可
中野坂上パークホームズの物件レポート
■立地
中野坂上パークホームズの立地は中野坂上と東中野のちょうど中間あたり、どちらの駅も徒歩10分圏内なので目的地によって十分使い分け可能な立地。東西に延びる桃園川緑道も近く住環境はとても良い。中野坂上も東中野も大型スーパーはとても充実している街なので日常の買い物で不憫を感じることはないはず。
■アクセス
・丸ノ内線「中野坂上」駅徒歩6分
・大江戸線「中野坂上」駅徒歩6分
・総武中央線「東中野」駅徒歩8分
■物件
中野坂上パークホームズは、平成12年築、三井不動産旧分譲、三井建設施工、三井系管理のオール三井なパークホームズシリーズ。地上9階建てだけど、横に広く、総戸数は100戸越えの128世帯と圧巻のスケール!管理状態も良い。有人管理体制(曜~土曜まで)でセキュリティも安心。コノ字型に配棟された造りで、中庭を取り囲む設計は大規模物件ならでは。
平成27年には大規模修繕工事も終えており、管理状態も全く問題なく、心配いりません。引き続き今後も中古市場において安定的に売買が行われるであろう条件の整ったマンションでしょう。
- 平成12年築、三井不動産旧分譲のパークホームズシリーズ
- 総戸数128邸の圧巻スケール
- 東西に延びる桃園川緑道も近く住環境はとても良い
設備・備考等
・オートロック
・宅配ボックス
・エレベーター
(2基)
・インターネット対応
・駐車場
:月額 27,000円
~34,000円
・駐輪場
:月額 300円
~500円
・バイク置場
:月額 4,000円
- 敷地内駐車場:月額27,000円~34,000円
- 宅配ボックス
- エレベーター3基
修繕履歴
・2021年:鉄部・防水保護塗装工事
・2019年:BS・CS設備改修工事
・2018年:排水ポンプ・ばっ気ポンプ交換
・2015年:大規模修繕工事
・2019年:BS・CS設備改修工事
・2018年:排水ポンプ・ばっ気ポンプ交換
・2015年:大規模修繕工事
- 中野坂上と東中野のちょうど中間あたり
- 東西に延びる桃園川緑道も近く住環境はとても良い
- コノ字型に配棟された造りで、中庭を取り囲む設計
- オートロック
- 宅配ボックス
- レンタサイクルもありますよ~
- 平成12年築、三井不動産旧分譲、三井建設施工、三井系管理のオール三井
- 敷地内駐車場:月額27,000円~34,000円
メモ
・ペット飼育:不可
・新耐震基準適合物件
・フラット35利用可能
・大規模修繕工事実施済み
(2015年
施工)
・修繕積立金額:2億26,577,813円
(21年
10月
時点)
販売中の部屋情報
- 12,980 万円
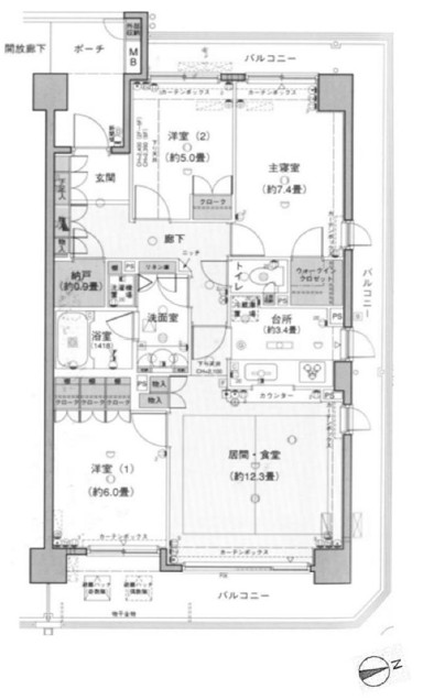
- 5階 | 3LDK + 納戸 | 71.51㎡ | 不可
部屋のPOINT
フルリノベーション / 陽当たり良いよ / 見晴らし良いよ / 8000万円以上 / 1億円以上 / 久しぶりの登場だよ / 床暖房あるよ / アフターサービス保証付き / 部屋数欲しい人!3LDKです。
室内写真
バルコニー・眺望物件概要
| 種類 | 中古マンション |
|---|---|
| 物件名 | 中野坂上パークホームズ |
| 所在地 |
東京都中野区中央1-50-17
GoogleMap |
| 交通 | 丸ノ内線「中野坂上」駅徒歩6分 大江戸線「中野坂上」駅徒歩6分 総武中央線「東中野」駅徒歩8分 |
| 販売価格 | 12,980万円 |
| 間取り | 3LDK + 納戸 |
| 専有面積 | 71.51㎡ |
| 管理費 | 8,220円 |
| 修繕積立金 | 20,240円 |
| 現況 | 空室 |
| 構造 | RC造 9階建て |
| 所在階 | 5階 |
| 築年月 | 2000年2月 |
| 総戸数 | 128戸 |
| 施工会社 | 三井建設 |
| 管理会社 | 三井不動産レジデンシャルサービス |
| 管理形態 | 全部委託 日勤 |
| 駐車場 | 月額 27,000円 ~ 34,000円 |
| 駐輪場 | 月額 300円 ~ 500円 |
| バイク置場 | 月額 4,000円 |
| 取引態様 | 仲介 |
| ペット飼育 | 不可 |
| POINT | 中古マンション / 丸の内線 / 大江戸線 / 中野坂上 / 東中野 / 中野区 / 近くにコンビニあります / 近くにスーパーあります / 新耐震基準適合 / 大規模修繕工事済み / フラット35 / オートロック / 宅配ボックス / 大規模マンション / エレベーター / 管理状態良いね / ペット可 |
ファミリーマート 中野中央一丁目店 (49 m)
セブンイレブン 東中野末広橋店 (263 m)
マルエツ プチ 中野中央店 (188 m)
まいばすけっと 中野中央2丁目店 (296 m)
ライフ 中野坂上店 (383 m)
Olympic(オリンピック)中野坂上店 (463 m)
マルマンストア 中野店 (616 m)
もとまちUNION(ユニオン) 新宿店 (617 m)
セブンイレブン 東中野末広橋店 (263 m)
マルエツ プチ 中野中央店 (188 m)
まいばすけっと 中野中央2丁目店 (296 m)
ライフ 中野坂上店 (383 m)
Olympic(オリンピック)中野坂上店 (463 m)
マルマンストア 中野店 (616 m)
もとまちUNION(ユニオン) 新宿店 (617 m)













LINEでお問い合わせ

スタッフコメント
・5階部分
・専有面積71.51㎡、3LDK+納戸
・新規内装フルリノベーション!