- 16,990万円
- 2LDK | 66.94㎡ | 目黒駅 | 可
ザ‧マジェスティコート⽬黒の物件レポート
■立地
目黒駅から徒歩8分、不動前駅で徒歩9分。山手通り沿いです。目印で言うとトレファクスタイル 目黒店の近くです。
■物件
ザ‧マジェスティコート⽬黒は平成30年築、東京建物と三菱地所レジデンスの共同プロジェクトで誕生した地上14階建て総戸数150邸の大型中古マンションです。
平成2桁築の築浅物件で、総戸数も100邸オーバーな大型マンションだけあって迫力ある外観と、共用部が広々していてさすがの造りです。モダンな天然石貼りのエントランスを抜けた先のギャラリーホールやラウンジなんかも見た目だけでなく、用途としても実用的な感じで素敵です。
設備・備考等
・オートロック
・宅配ボックス
・エレベーター
・駐車場
:月額 30,500円
~38,000円
・駐輪場
:月額 200円
~350円
・バイク置場
:有
・ラウンジ(オーナーズラウンジ)
・ギャラリーホール(美術館をコンセプトにしたエントランス)
・インナーガーデン
メモ
・ペット飼育:可 (細則あり・1住戸2匹まで)
・新耐震基準適合物件
・フラット35利用可能
ペット飼育:可(⽝猫合わせて2匹まで。成⽝時において抱きかかえること⼜はケージ等に⼊れることが可能な⼩型⽝(成⽝時の体⾼が概ね40cm以下かつ成⽝時の体重が概ね10kg以下の⽝)及び猫、その他細則あり。)
販売中の部屋情報
- 16,990 万円
- 7階 | 2LDK | 66.94㎡ | 可
部屋のPOINT
陽当たり良いよ / 8000万円以上 / 1億円以上 / アフターサービス保証付き / 部屋数欲しい人!3LDKです。 / リフォーム済
物件概要
| 種類 | 中古マンション |
|---|---|
| 物件名 | ザ‧マジェスティコート⽬黒 |
| 所在地 |
東京都目黒区下目黒2-23-21
GoogleMap |
| 交通 | JR山手線『目黒』駅徒歩8分 東急目黒線『不動前』駅徒歩9分 |
| 販売価格 | 16,990万円 |
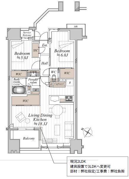
| 間取り | 2LDK |
| 専有面積 | 66.94㎡ |
| 管理費 | 17,600円 |
| 修繕積立金 | 12,720円 |
| 現況 | 空室 |
| 構造 | RC造 14階建て |
| 所在階 | 7階 |
| 築年月 | 2018年10月 |
| 総戸数 | 150戸 |
| 施工会社 | ⽊内建設 |
| 管理会社 | 東京建物アメニティサポート |
| 管理形態 | 全部委託 日勤 |
| 駐車場 | 月額 30,500円 ~ 38,000円 |
| 駐輪場 | 月額 200円 ~ 350円 |
| バイク置場 | 有 |
| 取引態様 | 仲介 |
| ペット飼育 | 可(細則あり・1住戸2匹まで) |
| POINT | 中古マンション / 山手線 / 目黒 / 目黒区 / 近くにコンビニあります / 近くにスーパーあります / 築浅 / 新耐震基準適合 / フラット35 / オートロック / 宅配ボックス / STAFFオススメ / エレベーター / 管理状態良いね / 内廊下設計 / ペット可 / 管理優秀 |
セブンイレブン 目黒柳通り店 (134 m)
ファミリーマート 伊豆屋下目黒三丁目店 (158 m)
まいばすけっと 下目黒2丁目店 (114 m)
マルエツ 目黒店 (223 m)
Ozeki(オオゼキ)目黒不動前店 (539 m)
都立林試の森公園東門 (604 m)
ファミリーマート 伊豆屋下目黒三丁目店 (158 m)
まいばすけっと 下目黒2丁目店 (114 m)
マルエツ 目黒店 (223 m)
Ozeki(オオゼキ)目黒不動前店 (539 m)
都立林試の森公園東門 (604 m)
他の物件を探す
幡ヶ谷ベース
営業時間 10:00~20:00
定休日 水曜日
京王新線「幡ヶ谷」駅北口徒歩2分
東京都渋谷区幡ヶ谷2-6-5 梅村ビル7階
営業時間 10:00~20:00
定休日 水曜日
京王新線「幡ヶ谷」駅北口徒歩2分
東京都渋谷区幡ヶ谷2-6-5 梅村ビル7階














LINEでお問い合わせ
スタッフコメント
7階部分です。専有面積66.94平米の2LDK間取り。売主負担で3LDKも可。