- 42,800万円
- 4LDK + W | 188.42㎡ | 中野駅 | 不可
なかのサンクォーレタワー2603の物件レポート
■立地・住環境
中野駅の北側を歩くこと徒歩3分。中野サンプラザ横の地上26階建てのタワーマンションです。中野駅徒歩3分なので静かな住環境とは言い難いけど利便性は抜群!
■周辺・買い物施設
1階に本屋さんとイトーヨーカドーがはいっています。コンビニもスーパーもドン・キホーテだってある。まぁ基本的に徒歩圏で何でも揃う住環境です。
■物件
なかのサンクォーレタワーは平成6年築、中野四丁目東地区市街地再開発組合が施主となり、戸田建設・三井建設の共同企業体によって開発された物件です。地下4階付き地上26階建て総戸数144邸の大型のタワーマンションです。
■セキュリティ
エントランスはもちろんオートロック。24時間有人管理体制でコンシェルジュと常駐の管理人さんが見守ってくれます。
設備・備考等
・オートロック
・宅配ボックス
・エレベーター
(3基)
・駐車場
:月額 40,000円
~50,000円
・駐輪場
:月額 300円
~500円
・バイク置場
:月額 1,000円
~10,000円
・ゲストルーム
・スカイラウンジ
・パーティールーム
・会議室
■コンシェルジュサービス
・来訪者の受付・案内
・共用施設の予約
・宅配便の一時預かりサービス
・タクシー手配サービス
・クリ―ニング取次サービス
メモ
・ペット飼育:不可
・新耐震基準適合物件
・フラット35利用可能
・大規模修繕工事実施済み
(2018年
3月
施工)
・修繕積立金額:536,094,895円
(2025年
3月
時点)
販売中の部屋情報
- 42,800 万円
- 26階 | 4LDK + W | 188.42㎡ | 不可
フルリノベーション / リノベ完成してるよ / 陽当たり良いよ / 見晴らし良いよ / 100平米オーバー / バルコニー広め / 角部屋 / 最上階 / 1億円以上 / リビング広い / ウォークインクローゼット / ちょっとプレミア感あるよ / アフターサービス保証付き / 部屋数欲しい人!3LDKです。 / パントリーあるよ
物件概要
| 種類 | 中古マンション |
|---|---|
| 物件名 | なかのサンクォーレタワー2603 |
| 所在地 |
東京都中野区中野4-3-1
GoogleMap |
| 交通 | 総武中央線「中野」駅徒歩3分 東西線「中野」駅徒歩3分 |
| 販売価格 | 42,800万円 |
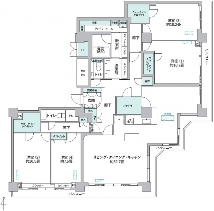
| 間取り | 4LDK + W |
| 専有面積 | 188.42㎡ |
| 管理費 | 69,742円 |
| 修繕積立金 | 39,005円 |
| その他費用 | 2,360円 |
| 現況 | 空室 |
| 構造 | SRC造 26階建て |
| 所在階 | 26階 |
| 築年月 | 1994年11月 |
| 総戸数 | 144戸 |
| 施工会社 | 戸田・三井建設共同企業体 |
| 管理会社 | 株式会社なかのサンクォーレ |
| 管理形態 | 全部委託 日勤 |
| 駐車場 | 月額 40,000円 ~ 50,000円 |
| 駐輪場 | 月額 300円 ~ 500円 |
| バイク置場 | 月額 1,000円 ~ 10,000円 |
| 取引態様 | 仲介 |
| ペット飼育 | 不可 |
| POINT | 中古マンション / 中野区 / 修繕積立金たっぷり / 駅近 / 近くにコンビニあります / 近くにスーパーあります / 新耐震基準適合 / 大規模修繕工事済み / フラット35 / オートロック / 宅配ボックス / 大規模マンション / エレベーター / 管理状態良いね / タワマン / 公園が近い / コンシェルジュいるよ / ペット不可 |
・中野ブロードウェイ(徒歩3分)
・ダイソー中野ブロードウェイ店(徒歩3分)
・ファミリーマートサンプラザ北店(徒歩2分)
・中野区立中野四季の森公園(徒歩6分)
・イトーヨーカドー食品館中野店(徒歩1分)
・西友中野店(徒歩3分)
他の物件を探す
営業時間 10:00~20:00
定休日 水曜日
京王新線「幡ヶ谷」駅北口徒歩2分
東京都渋谷区幡ヶ谷2-6-5 梅村ビル7階









LINEでお問い合わせ
スタッフコメント
26階最上階部分の角部屋がでてきました!専有面積188.42平米の4LDKです。新規内装フルリノベーション済です。(2025年12月上旬)