- 16,480万円
- 3LDK + W | 80.43㎡ | 東中野駅 | 可
パークタワー東中野の物件レポート
■ユニゾンモールって
ユニゾンモールへは東中野駅の東口から連絡通路でアクセス可能なので本当に便利ですよ!ユニゾンモールにはダイソー、キッチンコート東中野、ミネドラッグ、ゴールドジムなどショップも充実。
■物件
パークタワー東中野は平成19年築、三井不動産旧分譲の地上30階建て169邸のタワーレジデンスです。パークタワーなので管理はもちろん良い。建物全体の修繕積立金も令和4年12月時点で4億5000万円ストックされています。大規模修繕の際もこれなら安心だ。
■共用部
パークタワー東中野は共用部も充実しています。エントランスロビーにはソファセットでホテルライクな空間、ロビーに面したウッドデッキのテラスは春には神田川の桜が望める。ゲストルームもあるから親族が遊びに来ても気兼ねなくお泊りしてもらえる。ゲストルームってあると意外と便利ですよね。
- 平成19年築、三井不動産旧分譲の地上30階建て169邸のタワーレジデンス
- 駐車場:空有(27,000円~33,000円/月)
設備・備考等
・オートロック
・宅配ボックス
・エレベーター
・インターネット対応
:つなぐネットコミュニケーションズ・NTT
・駐車場
:月額 27,000円
~33,000円
・駐輪場
:月額 100円
~1,000円
・バイク置場
:月額 2,000円
・1階にロビー兼集会所
・ゲストルームあり(有償)
- ロビーにはソファセットでホテルライクな空間
- ゲストルームもありますよ
修繕履歴
・2022年 宅配ロッカー修理工事
・2021年 共用部照明LED化工事
・2017年 1階エントランスタイルカーペット張替作業
・2015年 屋上防水・鉄部等塗装工事
・2013年 圧送ポンプユニット整備
・2021年 共用部照明LED化工事
・2017年 1階エントランスタイルカーペット張替作業
・2015年 屋上防水・鉄部等塗装工事
・2013年 圧送ポンプユニット整備
- ペット可(2匹までOK)
- ・ダブルオートロック ・キーレスエントリー
- 修繕積立金が4億5000万円!お金持ち―!
メモ
・ペット飼育:可 (細則あり)
・新耐震基準適合物件
・フラット35利用可能
・修繕積立金額:457,509,339円
(22年
10月
時点)
・キーレスエントリー
販売中の部屋情報
- 16,480 万円
- 28階 | 3LDK + W | 80.43㎡ | 可
部屋のPOINT
フルリノベーション / リノベ完成してるよ / 陽当たり良いよ / 見晴らし良いよ / 8000万円以上 / 1億円以上 / リビング広い / ウォークインクローゼット / 床暖房あるよ / 夜景が綺麗だ~ / アフターサービス保証付き / 部屋数欲しい人!3LDKです。
物件概要
| 種類 | 中古マンション |
|---|---|
| 物件名 | パークタワー東中野 |
| 所在地 |
東京都中野区東中野5-1-12
GoogleMap |
| 交通 | 中央総武線「東中野」駅徒歩3分 大江戸線「東中野」駅徒歩7分 東西線「落合」駅徒歩8分 |
| 販売価格 | 16,480万円 |
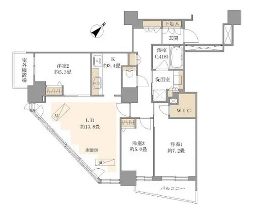
| 間取り | 3LDK + W |
| 専有面積 | 80.43㎡ |
| 管理費 | 22,520円 |
| 修繕積立金 | 20,910円 |
| 現況 | 空室 |
| 構造 | RC造 30階建て |
| 所在階 | 28階 |
| 築年月 | 2007年1月 |
| 総戸数 | 169戸 |
| 施工会社 | 東急建設株式会社 |
| 管理会社 | 三井不動産レジデンシャルサービス |
| 管理形態 | 全部委託 日勤 |
| 駐車場 | 月額 27,000円 ~ 33,000円 |
| 駐輪場 | 月額 100円 ~ 1,000円 |
| バイク置場 | 月額 2,000円 |
| 取引態様 | 仲介 |
| ペット飼育 | 可(細則あり) |
| POINT | 中古マンション / 大江戸線 / 東中野 / 中野区 / 近くにコンビニあります / 近くにスーパーあります / 新耐震基準適合 / フラット35 / オートロック / 宅配ボックス / 大規模マンション / エレベーター / 管理状態良いね / タワマン / 内廊下設計 / 共用部充実 / PREMIUM / ペット可 / 管理優秀 |
・ファミリーマート 東中野駅東口店:徒歩2分
・キッチンコート 東中野店:徒歩1分
・成城石井 アトレヴィ東中野店:徒歩5分
・サミットストア 東中野店:徒歩5分
・ライフ 東中野店:徒歩7分
・西武信用金庫東中野支店:徒歩2分
・キッチンコート 東中野店:徒歩1分
・成城石井 アトレヴィ東中野店:徒歩5分
・サミットストア 東中野店:徒歩5分
・ライフ 東中野店:徒歩7分
・西武信用金庫東中野支店:徒歩2分
他の物件を探す
幡ヶ谷ベース
営業時間 10:00~20:00
定休日 水曜日
京王新線「幡ヶ谷」駅北口徒歩2分
東京都渋谷区幡ヶ谷2-6-5 梅村ビル7階
営業時間 10:00~20:00
定休日 水曜日
京王新線「幡ヶ谷」駅北口徒歩2分
東京都渋谷区幡ヶ谷2-6-5 梅村ビル7階







LINEでお問い合わせ
スタッフコメント
28階の高層階角住戸!日当たり眺望良好です!専有面積80.43㎡の広々3LDKタイプ!新規内装フルリノベーション