- 19,980万円 PriceDown ↓
- 3LDK | 85.05㎡ | 恵比寿駅 | 不可
朝日広尾マンションの物件レポート
■立地
明治通り沿いに建つ物件です。最寄り駅は恵比寿で徒歩7分、広尾も徒歩10分なので恵比寿と広尾を使い分け出来る立地が魅力です。
■物件
朝日広尾マンションは1987年築なので新耐震基準に適合しています。朝日建物分譲、東海興業施工のSRC造地上14階建て総戸数303邸の大型マンションです。
明治通り沿いの物件ですが、物件の北側に明治通り、南側に渋谷川とい建ち方なので南側の住戸なら明治通りの騒音はさほど気にならないレベルです。エントランスセキュリティは夜間オートロック(22時-5時)で日中は管理人さんが見守ってくれます。管理人さんは平日8:00〜17:00、土曜日は8:00〜12:00勤務体制。日中の時間帯は常住している安心感がありますね。
■物件の管理状態
総戸数303邸の大型のマンションだけに管理状態はすこぶる良いです。直近の大規模修繕工事は2012年に実施されているので近々最新の大規模修繕工事が行われる周期だと思います。それでも2022.2時点で建物全体の修繕積立金が3億2,200万円以上ストックされているので積立金不足などの不安要素はありません!
■修繕
2023.8時点でエレベーターの改修工事を実施。
- 建物は明治通り沿い。恵比寿駅徒歩7分の立地です。
- 物件の北側が明治通りで南側は渋谷川です。
設備・備考等
・オートロック
(22:00~翌5:00)
・宅配ボックス
・エレベーター
(2基)
・駐車場
:有
・駐輪場
:有
・コインランドリー設置
・地下駐車場:全長4,700mm、全幅1,700mm、全高1,500mm、重量1,500kg
- エレベーターは2基完備。2023.8エレベーター改修工事実施
- 管理人さんは平日8:00〜17:00、土曜日は8:00〜12:00
修繕履歴
・2024年 4月 増圧給水ユニット更新工事
・2024年 3月 自動火災報知設備、防火設備更新
・2023年 8月 エレベーター改修工事
・2020年11月 鉄部塗装工事
・2014年 7月 共用部照明LED化工事
・2012年 7月 大規模修繕工事
・2011年 7月 増圧給水方式改修工事
・2024年 3月 自動火災報知設備、防火設備更新
・2023年 8月 エレベーター改修工事
・2020年11月 鉄部塗装工事
・2014年 7月 共用部照明LED化工事
・2012年 7月 大規模修繕工事
・2011年 7月 増圧給水方式改修工事
- 綺麗なエントランス周り
- エントランスが通りから少し奥まるように設置
メモ
・ペット飼育:不可
・新耐震基準適合物件
・フラット35利用可能
・大規模修繕工事実施済み
(2012年
施工)
・修繕積立金額:33,532,700円
(25年
2月
時点)
・ペット飼育不可
・広尾小学校
・広尾中学校
販売中の部屋情報
- 19,980 万円 PriceDown ↓
- 12階 | 3LDK | 85.05㎡ | 不可
部屋のPOINT
フルリノベーション / リノベ完成してるよ / 陽当たり良いよ / 1億円以上 / リビング広い / だいぶ価格下がってます / 価格下がりました / 久しぶりの登場だよ / アフターサービス保証付き / 部屋数欲しい人!3LDKです。
室内写真
浴室・洗面台・トイレ キッチン リビング物件概要
| 種類 | 中古マンション |
|---|---|
| 物件名 | 朝日広尾マンション |
| 所在地 |
東京都渋谷区広尾1-11-5
GoogleMap |
| 交通 | 山手線「恵比寿」駅徒歩7分 埼京線「恵比寿」駅徒歩7分 日比谷線「広尾」駅徒歩10分 |
| 販売価格 | 19,980万円 |
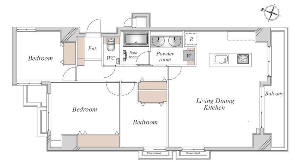
| 間取り | 3LDK |
| 専有面積 | 85.05㎡ |
| 管理費 | 18,700円 |
| 修繕積立金 | 11,060円 |
| 現況 | 空室 |
| 構造 | SRC造 14階建て |
| 所在階 | 12階 |
| 築年月 | 1987年1月 |
| 総戸数 | 303戸 |
| 施工会社 | 東海興業 |
| 管理会社 | 朝日管理 |
| 管理形態 | 全部委託 日勤 |
| 駐車場 | 有 |
| 駐輪場 | 有 |
| 取引態様 | 仲介 |
| ペット飼育 | 不可 |
| POINT | 中古マンション / 山手線 / 恵比寿 / 広尾 / 渋谷区 / 修繕積立金たっぷり / 住環境押し / 近くにコンビニあります / 近くにスーパーあります / 新耐震基準適合 / フラット35 / オートロック / STAFFオススメ / 大規模マンション / エレベーター / 管理良好ヴィンテージ / 管理状態良いね / SOHO相談可 / ペット不可 / 管理優秀 / 日比谷線 |
ローソン 広尾南店 (60 m)
ミニストップ 広尾1丁目店 (80 m)
セブンイレブン 渋谷恵比寿1丁目店 (141 m)
miniピアゴ 広尾5丁目店 (310 m)
Picard(ピカール) 広尾店 (433 m)
KINOKUNIYA entree恵比寿駅店 (543 m)
ザ・ガーデン自由が丘 アトレ恵比寿店 (574 m)
成城石井 アトレ恵比寿西館店 (574 m)
臨川四季の森 (268 m)
横浜銀行 恵比寿支店 (335 m)
千葉銀行恵比寿支店 (359 m)
みずほ銀行 恵比寿支店 (361 m)
渋谷区新橋出張所 (85 m)
新橋保育園 (80 m)
渋谷区立臨川幼稚園 (103 m)
渋谷区立臨川小学校 (161 m)
ミニストップ 広尾1丁目店 (80 m)
セブンイレブン 渋谷恵比寿1丁目店 (141 m)
miniピアゴ 広尾5丁目店 (310 m)
Picard(ピカール) 広尾店 (433 m)
KINOKUNIYA entree恵比寿駅店 (543 m)
ザ・ガーデン自由が丘 アトレ恵比寿店 (574 m)
成城石井 アトレ恵比寿西館店 (574 m)
臨川四季の森 (268 m)
横浜銀行 恵比寿支店 (335 m)
千葉銀行恵比寿支店 (359 m)
みずほ銀行 恵比寿支店 (361 m)
渋谷区新橋出張所 (85 m)
新橋保育園 (80 m)
渋谷区立臨川幼稚園 (103 m)
渋谷区立臨川小学校 (161 m)






LINEでお問い合わせ



スタッフコメント
・12階部分
・専有面積85.05平米の3LDK
・新規フルリノベーション済!