- 8,499万円 PriceDown ↓
- 3LDK | 58.86㎡ | 参宮橋駅 | 不可
シェトワ代々木の物件レポート
■立地
代々木公園に近い閑静な住宅街の渋谷区代々木4丁目アドレスの物件。山手通りや甲州街道からも奥まっていて住環境はオススメ。
■物件
シェトワ代々木は1983年築、ニッセイ通商により分譲された地上6階建て24邸の物件。耐震は新耐震基準適合です。施工は住友建設、管理は東急コミュニティの日勤管理体制です。
- 1983年築、ニッセイ通商分譲の地上6階建て
- 新耐震基準適合です。
設備・備考等
・オートロック
・エレベーター
・駐車場
:有
・駐輪場
:月額 1,000円
~1,500円
- オートロックありますよ~
- 2019年6月:エレベーターリニューアル工事
修繕履歴
・2024年3月:直結増圧給水方式導入及び共用給水管更新工事
・2019年6月:エレベーターリニューアル工事
・2018年4月:引込開閉基盤、共用動力電灯盤改修
・2016年5月:玄関扉改修工事
・2019年6月:エレベーターリニューアル工事
・2018年4月:引込開閉基盤、共用動力電灯盤改修
・2016年5月:玄関扉改修工事
- 東急コミュニティの日勤管理体制です。
- 管理状態良好!
メモ
・ペット飼育:不可
・新耐震基準適合物件
・フラット35利用可能
・大規模修繕工事実施済み
(2014年
3月
施工)
(学区)
・代々木山谷小学校
・代々木中学校
販売中の部屋情報
- 8,499 万円 PriceDown ↓
- 3階 | 3LDK | 58.86㎡ | 不可
部屋のPOINT
フルリノベーション / 陽当たり良いよ / 8000万円以上 / ウォークインクローゼット / 価格下がりました / 久しぶりの登場だよ / アフターサービス保証付き / 部屋数欲しい人!3LDKです。
室内写真
玄関・廊下- 洗面化粧台
- 扉全部開けるとなんか凄い。。
- 浴室乾燥機
- トイレ
- ハーフオープンのキッチン
- 引き出し収納
- シンク
- ガスコンロ
- バルコニーの広さは十分
- 陽当たりは良くはない。。眺望も期待しないでください。
物件概要
| 種類 | 中古マンション |
|---|---|
| 物件名 | シェトワ代々木 |
| 所在地 |
東京都渋谷区代々木4-22-14
GoogleMap |
| 交通 | 小田急線「参宮橋」駅徒歩6分 京王新線「初台」駅徒歩8分 |
| 販売価格 | 8,499万円 |
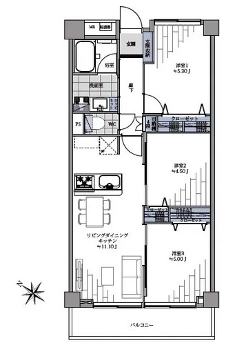
| 間取り | 3LDK |
| 専有面積 | 58.86㎡ |
| 管理費 | 26,200円 |
| 修繕積立金 | 18,420円 |
| 現況 | 空室 |
| 構造 | SRC造 6階建て |
| 所在階 | 3階 |
| 築年月 | 1983年4月 |
| 総戸数 | 24戸 |
| 施工会社 | 住友建設 |
| 管理会社 | 東急コミュニティ |
| 管理形態 | 全部委託 日勤 |
| 駐車場 | 有 |
| 駐輪場 | 月額 1,000円 ~ 1,500円 |
| 取引態様 | 仲介 |
| ペット飼育 | 不可 |
| POINT | 中古マンション / 京王線・新線 / 小田急線 / 初台 / 参宮橋 / 渋谷区 / 近くにコンビニあります / 近くにスーパーあります / 新耐震基準適合 / 大規模修繕工事済み / フラット35 / オートロック / 玄関扉も替えてるよ / 幡ヶ谷ベースで取引実績あります / エレベーター / 代々木公園が近いよ / 管理状態良いね / 公園が近い / ペット不可 |
当物件は弊社で販売実績あります!
ローソン 代々木西参道店 (194 m)
ファミリーマート 初台交差点前店 (219 m)
マルマンストア 参宮橋店 (327 m)
まいばすけっと 参宮橋駅前店 (334 m)
マルエツ プチ 西新宿三丁目店 (536 m)
miniピアゴ 代々木1丁目店 (586 m)
まいばすけっと 初台駅西店 (607 m)
参宮橋公園 (273 m)
代々木ポニー公園 (446 m)
都立代々木公園西参道口 (495 m)
ファミリーマート 初台交差点前店 (219 m)
マルマンストア 参宮橋店 (327 m)
まいばすけっと 参宮橋駅前店 (334 m)
マルエツ プチ 西新宿三丁目店 (536 m)
miniピアゴ 代々木1丁目店 (586 m)
まいばすけっと 初台駅西店 (607 m)
参宮橋公園 (273 m)
代々木ポニー公園 (446 m)
都立代々木公園西参道口 (495 m)
他の物件を探す
【NEW】中古マンションALL 初台・幡ヶ谷・笹塚エリア 初台・幡ヶ谷・笹塚エリア×ペット可 代々木エリア 代々木エリア×ペット可 参宮橋駅 渋谷区×高級中古マンション 渋谷区 シングル・ディンクス向け 高価格帯8,000万円↑
幡ヶ谷ベース
営業時間 10:00~20:00
定休日 水曜日
京王新線「幡ヶ谷」駅北口徒歩2分
東京都渋谷区幡ヶ谷2-6-5 梅村ビル7階
営業時間 10:00~20:00
定休日 水曜日
京王新線「幡ヶ谷」駅北口徒歩2分
東京都渋谷区幡ヶ谷2-6-5 梅村ビル7階






LINEでお問い合わせ




















スタッフコメント
3階部分、専有面積58.86㎡、3LDKがでました!