- 10,480万円 PriceDown ↓
- 3LDK | 63.85㎡ | 下北沢駅 | 不可
東急ドエルアルス下北沢サウスウインドの物件レポート
■立地
東急ドエルアルス下北沢サウスウインドの最寄り駅は井の頭線の池ノ上で徒歩3分!下北沢(小田急線と井の頭線)駅へ徒歩5分の絶好立地!池ノ上と下北沢の中間あたりに位置する物件で立地的には井の頭線の線路沿いになります。線路ネックはあるものの下北沢徒歩5分の魅力的過ぎる立地をどう判断するかだと思います。大通り沿いの物件だと音問題は24時間だけど線路沿いなら電車が走っている時間帯だけなので気持ち的には線路沿いの方がストレス少ない気がします。もちろん2重サッシ等で対策すればより良い。
■物件
東急ドエルアルス下北沢サウスウインドは平成10年築、東急不動産旧分譲のドエルアルスシリーズ。RC造地上4階建て総戸数22邸の低層フォルムのマンション。グレータイル貼りの品のある物件でエントランスはオートロック。抜けた先には吹き抜けの中庭があり4階建てだけどエレベーターもちゃんとあります!
管理会社は東急コミュニティが巡回管理ではいっています。直近の大規模修繕工事は2014年に終えています!建物も共用部も綺麗な物件ですよ。
- 平成10年築、東急不動産旧分譲のドエルアルスシリーズ
- 井の頭線の線路沿いなので部屋位置によっては音は拾います。
設備・備考等
・オートロック
・宅配ボックス
・エレベーター
・駐車場
:月額 40,000円
- 宅配ボックスあり
- オートロックあり
- 車寄せのある広々としたエントランス周り
- ペット不可なので必須の人はご注意ください
- 宅配ボックスあり
メモ
・ペット飼育:不可
・新耐震基準適合物件
・フラット35利用可能
・大規模修繕工事実施済み
(2014年
施工)
販売中の部屋情報
- 10,480 万円 PriceDown ↓
- 3階 | 3LDK | 63.85㎡ | 不可
部屋のPOINT
フルリノベーション / リノベ完成してるよ / 陽当たり良いよ / だいぶ価格下がってます / 価格下がりました / アフターサービス保証付き / 部屋数欲しい人!3LDKです。
室内写真
玄関・廊下物件概要
| 種類 | 中古マンション |
|---|---|
| 物件名 | 東急ドエルアルス下北沢サウスウインド |
| 所在地 |
東京都世田谷区北沢1-41-5
GoogleMap |
| 交通 | 小田急線「下北沢」駅徒歩5分 井の頭線「下北沢」駅徒歩5分 井の頭線「池ノ上」駅徒歩3分 |
| 販売価格 | 10,480万円 |
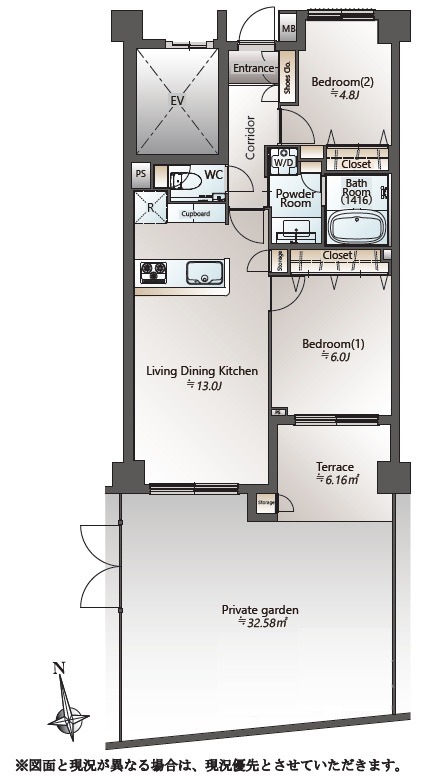
| 間取り | 3LDK |
| 専有面積 | 63.85㎡ |
| 管理費 | 23,000円 |
| 修繕積立金 | 27,010円 |
| 現況 | 空室 |
| 構造 | RC造 4階建て |
| 所在階 | 3階 |
| 築年月 | 1998年9月 |
| 総戸数 | 22戸 |
| 施工会社 | 西武建設 |
| 管理会社 | 東急コミュニティ |
| 管理形態 | 全部委託 巡回 |
| 駐車場 | 月額 40,000円 |
| 取引態様 | 仲介 |
| ペット飼育 | 不可 |
| POINT | 中古マンション / 井の頭線 / 小田急線 / 下北沢 / 池ノ上 / 世田谷区 / 駅近 / 近くにコンビニあります / 線路が近い / 新耐震基準適合 / フラット35 / オートロック / エレベーター / 低層マンション / 管理状態良いね / ペット不可 |
ファミリーマート 池ノ上駅北口店 (130 m)
ローソン 下北沢店 (157 m)
まいばすけっと 池ノ上駅前店 (144 m)
オオゼキ 下北沢店 (269 m)
foodium下北沢 (359 m)
目黒区立駒場公園 (818 m)
三菱UFJ銀行下北沢支店 (133 m)
三井住友銀行 下北沢支店 (285 m)
みずほ銀行 北沢支店 (374 m)
北沢出張所 (190 m)
北沢タウンホール (191 m)
世田谷区立池之上小学校 (243 m)
スマイルキッズ下北沢保育園 (353 m)
松蔭幼稚園 (421 m)
ローソン 下北沢店 (157 m)
まいばすけっと 池ノ上駅前店 (144 m)
オオゼキ 下北沢店 (269 m)
foodium下北沢 (359 m)
目黒区立駒場公園 (818 m)
三菱UFJ銀行下北沢支店 (133 m)
三井住友銀行 下北沢支店 (285 m)
みずほ銀行 北沢支店 (374 m)
北沢出張所 (190 m)
北沢タウンホール (191 m)
世田谷区立池之上小学校 (243 m)
スマイルキッズ下北沢保育園 (353 m)
松蔭幼稚園 (421 m)
他の物件を探す
幡ヶ谷ベース
営業時間 10:00~20:00
定休日 水曜日
京王新線「幡ヶ谷」駅北口徒歩2分
東京都渋谷区幡ヶ谷2-6-5 梅村ビル7階
営業時間 10:00~20:00
定休日 水曜日
京王新線「幡ヶ谷」駅北口徒歩2分
東京都渋谷区幡ヶ谷2-6-5 梅村ビル7階













LINEでお問い合わせ























スタッフコメント
3階部分、専有面積63.85㎡、3LDK。新規内装フルリノベーション!