- 45,800万円 PriceDown ↓
- 2LDK | 91.39㎡ | 代々木上原駅 | 可
グランドメゾン渋谷大山町の物件レポート
■立地・住環境
小田急線・千代田線の複線が乗り入れる人気駅「代々木上原」駅から徒歩8分。徳川山とも呼ばれた由緒ある大山町アドレスの物件です。用途地域が第一種低層住居専用地域にかかる住宅街なので周辺は区画が綺麗でゆとりある街並みが素敵です。
■物件
グランドメゾン渋谷大山町は令和8年(2026年)築、RC造地上4階建て総戸数20邸の中古マンションです。分譲は積水ハウス、設計をアーキサイトメビウスが監修し、管理会社には積水ハウスGMパートナーズがはいっています。
設備・備考等
・オートロック
・宅配ボックス
・エレベーター
・インターネット対応
・駐車場
:有
・駐輪場
:有
・バイク置場
:有
・キッチンディスポーザー
・コンシェルジュサービス
- エントランス
- 風除室
- 共用部
- 宅配ボックス
- ラウンジ
- 駐車場
メモ
・ペット飼育:可 (細則あり)
・新耐震基準適合物件
・フラット35利用可能
・各階ゴミ置き場
・エントランスラウンジ
販売中の部屋情報
- 45,800 万円 PriceDown ↓
- 1階 | 2LDK | 91.39㎡ | 可
部屋のPOINT
お風呂広いよ / キッチン大きい / 8000万円以上 / 1億円以上 / リビング広い / 価格下がりました / 1階住戸 / 築後未入居 / ディスポーザー完備
室内写真
玄関・廊下- 玄関
- 廊下
- 廊下
- シューズボックス
- トイレ
- 手洗い
- 洗面化粧台
- 2ボウル
- 洗濯機置き場
- 収納
- 浴室
- 浴室1620
- イタリアの名門「モルテーニ」のシステムキッチン
- 約6帖のキッチン空間
- ガスコンロ
- シンク
- 食洗器
- 背面カップボード収納
- 埋込オーブン
- 収納
- 収納たっぷり!
- 食器も丸ごと収納できそうです
物件概要
| 種類 | 中古マンション |
|---|---|
| 物件名 | グランドメゾン渋谷大山町 |
| 所在地 |
東京都渋谷区大山町35-19
GoogleMap |
| 交通 | 小田急線「代々木上原」駅 徒歩8分 千代田線「代々木上原」駅 徒歩8分 小田急線「東北沢」駅 徒歩6分 |
| 販売価格 | 45,800万円 |
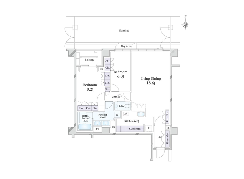
| 間取り | 2LDK |
| 専有面積 | 91.39㎡ |
| 管理費 | 56,100円 |
| 修繕積立金 | 25,600円 |
| 現況 | 空室 |
| 構造 | RC造 4階建て |
| 所在階 | 1階 |
| 築年月 | 2026年1月 |
| 総戸数 | 20戸 |
| 施工会社 | 若築建設株式会社 |
| 管理会社 | 積水ハウスGMパートナーズ |
| 管理形態 | 全部委託 日勤 |
| 駐車場 | 有 |
| 駐輪場 | 有 |
| バイク置場 | 有 |
| 取引態様 | 仲介 |
| ペット飼育 | 可(細則あり) |
| POINT | 中古マンション / 小田急線 / 千代田線 / 代々木上原 / 渋谷区 / 住環境押し / 築浅 / 新耐震基準適合 / フラット35 / オートロック / 宅配ボックス / STAFFオススメ / エレベーター / 低層マンション / 一種低層 / 管理状態良いね / 公園が近い / コンシェルジュいるよ / PREMIUM / ペット可 / グランドメゾンシリーズ |
・ローソン 渋谷大山町店:徒歩2分
・ファミリーマート 上原三丁目店:徒歩6分
・セブンイレブン 渋谷上原3丁目店:徒歩7分
・OdakyuOX代々木上原店:徒歩7分
・成城石井 フレンテ笹塚店:徒歩10分
・代々木大山公園:徒歩4分
・西原りとるぱんぷきんずANNEX:徒歩7分
・岸辺幼稚園:徒歩8分
・渋谷区立上原中学校:徒歩5分
・渋谷区立上原小学校:徒歩7分
・三菱東京UFJ銀行 代々木上原支店:徒歩7分
・ファミリーマート 上原三丁目店:徒歩6分
・セブンイレブン 渋谷上原3丁目店:徒歩7分
・OdakyuOX代々木上原店:徒歩7分
・成城石井 フレンテ笹塚店:徒歩10分
・代々木大山公園:徒歩4分
・西原りとるぱんぷきんずANNEX:徒歩7分
・岸辺幼稚園:徒歩8分
・渋谷区立上原中学校:徒歩5分
・渋谷区立上原小学校:徒歩7分
・三菱東京UFJ銀行 代々木上原支店:徒歩7分








LINEでお問い合わせ






































スタッフコメント
≪初掲載≫1階部分、専有面積91.39㎡、2LDK間取り。築後未入居です。LD天井高2.8m、ハイクオリティブランド【Molteni&Cのシステムキッチン】