- 21,000万円
- 2LDK | 77.23㎡ | 表参道駅 | 可
常盤松ハウスの物件レポート
■立地
第一種文教地区。六本木通りから中に入った常盤松の閑静な高台に立地する物件。向かいには常盤松御用邸。南青山テラス常盤松フォレストのお隣さんです。最寄り駅は表参道駅で徒歩11分ほど。広尾や恵比寿、渋谷にもでやすい位置です。
■物件
常盤松ハウスは総合商社の丸紅が分譲、安藤・間が施工を手掛けた2021年築、地上9階建て総戸数98邸の高級レジデンスです。ライトブラウン系の淡いタイル貼りの外観にバルコニーのガラスパネルがかっこいい。エントランス周りはダークトーン系の大判タイルで統一されておりダンディな印象です。
- 1970年築の旧常盤松ハウスの建て替えプロジェクトとして、2021年(令和3年)に丸紅旧分譲で誕生しました!
- 地上9階建て総戸数98戸でスケール感もあります!
設備・備考等
・オートロック
・宅配ボックス
・エレベーター
・トランクルーム
:月額 1,500円
・インターネット対応
・駐車場
:月額 36,000円
~42,000円
・駐輪場
:月額 500円
~1,000円
・バイク置場
:月額 1,500円
~2,000円
(セキュリティ)
エントランスセキュリティはオートロック(録画機能付)、24時間365日異常を監視するオンラインシステム(異常時には警備会社に転送されスタッフが派遣される)を採用。住戸内の全窓に防犯センサーを設置済み。
(防災設備)
地震が発生すると最寄り階に着床する管制運転付エレベーターや緊急時に必要な防災備蓄倉庫を完備し防災対策もしっかりしています。
(管理人)
管理員勤務時間:月曜日~日曜日/9 00~18 00
- エントランスには三重セキュリティシステムを採用
- オートロック
- 『表参道』駅徒歩11分!港区南青山7丁目の区界!道路を渡れば渋谷区です!
- エントランスには三重セキュリティシステムを採用
- オートロック
- ・修繕積立金額:93,074,863円(2024年6月時点)
- ・車寄せ、駐車場待機スペースあり
- (学区) ・青南小学校 ・青山中学校
メモ
・ペット飼育:可 (細則あり・1住戸2匹まで)
・新耐震基準適合物件
・フラット35利用可能
・修繕積立金額:93,074,863円
(2024年
6月
時点)
(学区)
・青南小学校
・青山中学校
販売中の部屋情報
- 21,000 万円
- 1階 | 2LDK | 77.23㎡ | 可
物件概要
| 種類 | 中古マンション |
|---|---|
| 物件名 | 常盤松ハウス |
| 所在地 |
東京都港区南青山7-1-21
GoogleMap |
| 交通 | 半蔵門線「表参道」駅徒歩10分 山手線他「渋谷」駅徒歩14分 日比谷線「広尾」駅徒歩15分 |
| 販売価格 | 21,000万円 |
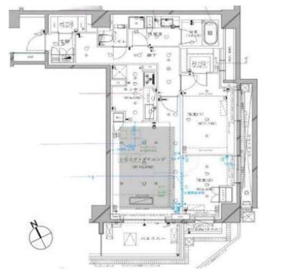
| 間取り | 2LDK |
| 専有面積 | 77.23㎡ |
| 管理費 | 27,800円 |
| 修繕積立金 | 24,710円 |
| 現況 | 空室 |
| 構造 | RC造 9階建て |
| 所在階 | 1階 |
| 築年月 | 2021年4月 |
| 総戸数 | 98戸 |
| 施工会社 | 株式会社安藤・間 |
| 管理会社 | 株式会社東急コミュニティー |
| 管理形態 | 全部委託 日勤 |
| 駐車場 | 月額 36,000円 ~ 42,000円 |
| 駐輪場 | 月額 500円 ~ 1,000円 |
| バイク置場 | 月額 1,500円 ~ 2,000円 |
| 取引態様 | 仲介 |
| ペット飼育 | 可(細則あり・1住戸2匹まで) |
| POINT | 中古マンション / 千代田線 / 山手線 / 渋谷 / 表参道 / 広尾 / 修繕積立金たっぷり / 住環境押し / 築浅 / 新耐震基準適合 / フラット35 / オートロック / 宅配ボックス / 大規模マンション / エレベーター / 駅からちょっと遠め / バスも便利 / 敷地ゆったり / 管理状態良いね / 内廊下設計 / 公園が近い / PREMIUM / ペット可 / 高級分譲 / 日比谷線 / 港区 / 半蔵門線 / 銀座線 |
成城石井西麻布店(徒歩9分/約650m)
有栖川宮記念公園(徒歩18分/約1,400m)
日本赤十字社医療センター(徒歩7分/約500m)
青南幼稚園(徒歩10分/約800m)
青南小学校(徒歩10分/約750m)
青山中学校(徒歩30分/約2,400m)








LINEでお問い合わせ
スタッフコメント
・1階部分
・専有面積77.23平米、2LDK
・空室