- 6,980万円
- 3LDK | 57.15㎡ | 中野富士見町駅 | 不可
東急ドエルアルス中野南台の物件レポート
■立地
東急ドエルアルス中野南台は方南通り沿いに位置する物件。最寄り駅は中野富士見町で徒歩11分だけど、エリア感でいうと方南町(徒歩12分)の方が行きやすいし便利な気がする。
■交通
丸の内線の中野富士見町駅まで徒歩11分。方南町で徒歩12分。どちらの駅も駅距離は若干あります。中野富士見町からは丸の内線で新宿まで直通8分、銀座まで24分、大手町まで28分です。
■バスも便利!
電車以外でも物件近くから南北に通る中野通り沿いには中野行、渋谷行、新宿行のバス便がありこれがとにかく便利!渋谷、新宿、中野に行くならもうバス一択です!
■住環境・周辺
マンション近くには、大型スーパーのライフもあるし公園、商店街があったり、ホームセンターの島忠もあったりと生活環境はとても充実しているエリアです。東京でも郊外のような少しゆったりとした雰囲気を感じさせてくれる街。そう、それが中野南台。
■建物
東急ドエルアルス中野南台は平成8年築、東急不動産と双日(旧ニチメン)旧分譲のドエルアルスシリーズ。淺沼組施工の地上10階建て80邸とそこそこ規模感も感じれる大型マンションです。エントランスはオートロック対応で各住戸は1LDK~4LDKまであるいわゆるファミリーマンション。
管理会社も東急コミュニティの日勤管理なので安心。令和3年2月に定例の大規模修繕工事も終えたばかり!またまた綺麗になってくれています。建物全体の修繕積立金も1億9,764,831円(令和4年1月時点)ストック。かなり優秀な物件ですよね!
設備・備考等
・オートロック
・宅配ボックス
・エレベーター
・駐車場
:月額 26,000円
~30,000円
・駐輪場
:月額 400円
~600円
・バイク置場
:月額 2,000円
修繕履歴
・令和2年9月:共用部照明をLED化工事
・平成27年10月:集合インターフォン更新(ダブルカメラ、子機埋込)
メモ
・ペット飼育:不可
・SOHO:可
・事務所:可
・新耐震基準適合物件
・フラット35利用可能
・大規模修繕工事実施済み
(2021年
2月
施工)
・修繕積立金額:109,764,831円
(2022年
1月
時点)
販売中の部屋情報
- 6,980 万円
- 5階 | 3LDK | 57.15㎡ | 不可
物件概要
| 種類 | 中古マンション |
|---|---|
| 物件名 | 東急ドエルアルス中野南台 |
| 所在地 |
東京都中野区南台3-6-14
GoogleMap |
| 交通 | 丸ノ内線「中野富士見町」駅徒歩11分 丸ノ内線「方南町」駅徒歩12分 |
| 販売価格 | 6,980万円 |
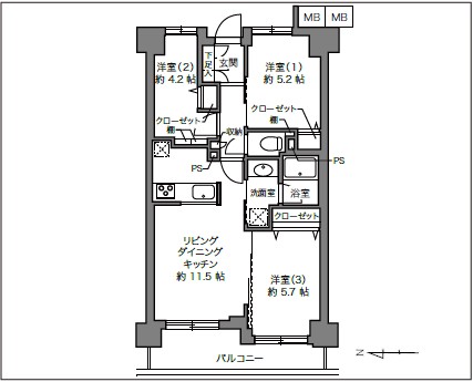
| 間取り | 3LDK |
| 専有面積 | 57.15㎡ |
| 管理費 | 13,700円 |
| 修繕積立金 | 21,720円 |
| 現況 | 空室 |
| 構造 | RC造 10階建て |
| 所在階 | 5階 |
| 築年月 | 1996年3月 |
| 総戸数 | 80戸 |
| 施工会社 | 淺沼組 |
| 管理会社 | 東急コミュニティ |
| 管理形態 | 全部委託 日勤 |
| 駐車場 | 月額 26,000円 ~ 30,000円 |
| 駐輪場 | 月額 400円 ~ 600円 |
| バイク置場 | 月額 2,000円 |
| 取引態様 | 仲介 |
| ペット飼育 | 不可 |
| POINT | 中古マンション / 丸の内線 / 方南町 / 中野富士見町 / 中野区 / 住環境押し / 近くにコンビニあります / 近くにスーパーあります / 新耐震基準適合 / 大規模修繕工事済み / フラット35 / オートロック / 宅配ボックス / STAFFオススメ / エレベーター / バスも便利 / 管理状態良いね / 公園が近い / ペット不可 |
ファミリーマート 南台二丁目店 (137 m)
ライフ 南台店 (171 m)
オオゼキ 杉並和田店 (574 m)
中野区立南台いちょう公園 (510 m)
南台小学校 (368 m)
西京信用金庫南中野支店 (183 m)
中野区 南中野区民活動センター (44 m)





LINEでお問い合わせ
スタッフコメント
5階部分、専有面積57.15㎡の3LDK、新規内装フルリノベーションで登場!