- 9,280万円
- 2LDK + W | 54.42㎡ | 代々木駅 | 可
北参道ダイヤモンドパレスの物件レポート
■立地
代々木駅の南側、北参道や千駄ヶ谷にも近い渋谷区千駄ヶ谷4丁目アドレスの物件。明治通りから1本中に入った商店街?と言っていいのかな~飲食店が多く建ち並ぶエリアの一角に立地しています。
■住環境・周辺
代々木駅徒歩4分で商業地域になるから閑静な住宅街とは言えない。駅近で利便性を重視する人にはもってこいな立地の物件です。
■物件
北参道ダイヤモンドパレスは1983年築だから新耐震基準に適合しています。SRC造11階建て85邸となかなか迫力ある物件です。施工はフジタ工業、管理には新日本管財が日勤管理ではいっています。外観はレトロヴィンテージ感あるレンガタイル貼り。1階に店舗、2階に事務所となっており3階以上が住居フロアです。各住戸の専有面積は30平米台のコンパクトタイプのものから70平米台の比較的広めのファミリー向け間取りのものまで幅広くあります。まぁ代々木駅4分の駅近なので投資用としてコンパクトタイプを所有しているオーナーも多い気がします。
- ひな壇構造ですね~
設備・備考等
・エレベーター
・駐車場
:月額 40,000円
・駐輪場
:月額 200円
・バイク置場
:月額 1,000円
- 共用部綺麗です。管理良い!
- ここがエントランス
修繕履歴
2 0 2 1 年 ごみ置場改修工事
2 0 2 0 年 L E D 化工事
2 0 1 8 年 屋上防水工事
2 0 0 2 年 大規模修繕工事
2 0 2 0 年 L E D 化工事
2 0 1 8 年 屋上防水工事
2 0 0 2 年 大規模修繕工事
- ひな壇構造ですね~
- 1階に店舗、2階に事務所、住居フロアは3階から。
メモ
・ペット飼育:可 (細則あり・1住戸2匹まで)
・新耐震基準適合物件
・フラット35利用可能
・大規模修繕工事実施済み
・修繕積立金額:86,920,907円
(25年
4月
時点)
販売中の部屋情報
- 9,280 万円
- 6階 | 2LDK + W | 54.42㎡ | 可
部屋のPOINT
フルリノベーション / 過去リノベ履歴あるよ / 陽当たり良いよ / 見晴らし良いよ / 8000万円以上 / リビング広い / アフターサービス保証付き
物件概要
| 種類 | 中古マンション |
|---|---|
| 物件名 | 北参道ダイヤモンドパレス |
| 所在地 |
東京都渋谷区千駄ヶ谷4-29-12
GoogleMap |
| 交通 | 山手線他「代々木」駅徒歩4分 副都心線「北参道」駅徒歩4分 総武中央線「千駄ヶ谷」駅徒歩9分 小田急線「南新宿」駅徒歩9分 |
| 販売価格 | 9,280万円 |
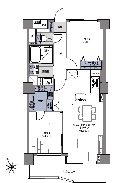
| 間取り | 2LDK + W |
| 専有面積 | 54.42㎡ |
| 管理費 | 12,500円 |
| 修繕積立金 | 6,250円 |
| 現況 | 空室 |
| 構造 | SRC造 11階建て |
| 所在階 | 6階 |
| 築年月 | 1983年3月 |
| 総戸数 | 85戸 |
| 施工会社 | フジタ工業株式会社 |
| 管理会社 | 新日本管財 |
| 管理形態 | 全部委託(日勤) |
| 駐車場 | 月額 40,000円 |
| 駐輪場 | 月額 200円 |
| バイク置場 | 月額 1,000円 |
| 取引態様 | 仲介 |
| ペット飼育 | 可(細則あり・1住戸2匹まで) |
| POINT | 中古マンション / 大江戸線 / 山手線 / 代々木 / 北参道 / 千駄ヶ谷 / 渋谷区 / 駅近 / 利便性重視 / 近くにコンビニあります / 近くにスーパーあります / 新耐震基準適合 / 大規模修繕工事済み / フラット35 / オートロック / エレベーター / 管理状態良いね / 公園が近い / ペット可 |
・セブンイレブン 代々木千駄ヶ谷4丁目店 (75 m)
・ミニストップ 千駄ヶ谷4丁目店 (161 m)
・miniピアゴ代々木駅東口店 (246 m)
・マルマンストア 南新宿店 (372 m)
・渋谷区千駄ヶ谷出張所 (110 m)
・ミニストップ 千駄ヶ谷4丁目店 (161 m)
・miniピアゴ代々木駅東口店 (246 m)
・マルマンストア 南新宿店 (372 m)
・渋谷区千駄ヶ谷出張所 (110 m)
他の物件を探す
幡ヶ谷ベース
営業時間 10:00~20:00
定休日 水曜日
京王新線「幡ヶ谷」駅北口徒歩2分
東京都渋谷区幡ヶ谷2-6-5 梅村ビル7階
営業時間 10:00~20:00
定休日 水曜日
京王新線「幡ヶ谷」駅北口徒歩2分
東京都渋谷区幡ヶ谷2-6-5 梅村ビル7階





LINEでお問い合わせ
スタッフコメント
11階建て6階部分、専有面積54.42平米、2LDK+W間取り。新規内装フルリノベーション!南向き、明治神宮方面ビューです。