- 17,990万円 PriceDown ↓
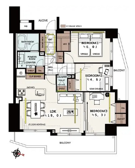
- 3LDK + W | 74.01㎡ | 神泉駅 | 可
クレッセント渋谷神泉の物件レポート
■立地
最寄駅は井の頭線の神泉で徒歩3分、渋谷駅へも徒歩12分でアクセス可能です。旧山手通り沿いに位置する物件です。
■物件
クレッセント渋谷神泉は平成11年築、分譲はモリモト、施工を日産建設が手掛けた地上13階建て60邸。管理会社には東急コミュニティが日勤管理ではいっています。エントランスはオートロック、ペット飼育も可です!
設備・備考等
・オートロック
・宅配ボックス
・エレベーター
・駐車場
:月額 10,800円
・駐輪場
:月額 300円
・バイク置場
:月額 1,500円
修繕履歴
令和5年9月:加圧給水ポンプユニット更新工事
令和元年9月:鉄部塗装工事
平成24年3月:大規模修繕工事
令和元年9月:鉄部塗装工事
平成24年3月:大規模修繕工事
メモ
・ペット飼育:可 (1住戸2匹まで)
・新耐震基準適合物件
・フラット35利用可能
・大規模修繕工事実施済み
(2024年
3月
施工)
・修繕積立金額:108,911,095円
(2024年
10月
時点)
販売中の部屋情報
- 17,990 万円 PriceDown ↓
- 8階 | 3LDK + W | 74.01㎡ | 可
部屋のPOINT
他のお部屋も販売中
フルリノベーション / リノベーションしたい人向け / 陽当たり良いよ / 見晴らし良いよ / 2面バルコニー / バルコニー広め / 角部屋 / 8000万円以上 / 1億円以上 / 価格下がりました / アフターサービス保証付き / 部屋数欲しい人!3LDKです。
物件概要
| 種類 | 中古マンション |
|---|---|
| 物件名 | クレッセント渋谷神泉 |
| 所在地 |
東京都渋谷区神泉町20-17
GoogleMap |
| 交通 | 井の頭線「神泉」駅徒歩3分 山手線他「渋谷」駅徒歩12分 |
| 販売価格 | 17,990万円 |
| 間取り | 3LDK + W |
| 専有面積 | 74.01㎡ |
| 管理費 | 12,300円 |
| 修繕積立金 | 24,790円 |
| 現況 | 空室 |
| 構造 | RC造 13階建て |
| 所在階 | 8階 |
| 築年月 | 1999年7月 |
| 総戸数 | 60戸 |
| 施工会社 | 日産建設 |
| 管理会社 | 東急コミュニティ |
| 管理形態 | 全部委託 日勤 |
| 駐車場 | 月額 10,800円 |
| 駐輪場 | 月額 300円 |
| バイク置場 | 月額 1,500円 |
| 取引態様 | 仲介 |
| ペット飼育 | 可(1住戸2匹まで) |
| POINT | 中古マンション / 井の頭線 / 山手線 / 渋谷 / 神泉 / 渋谷区 / 駅近 / 近くにコンビニあります / 新耐震基準適合 / フラット35 / オートロック / エレベーター / 管理状態良いね / ペット可 / 管理優秀 |
・ナチュラルローソン 渋谷神泉町店:徒歩2分
・マルエツ プチ 渋谷神泉店:徒歩2分
・ライフ 目黒大橋店:徒歩8分
・業務スーパー 目黒大橋店:徒歩8分
・渋谷区立鍋島松涛公園:徒歩5分
・渋谷区地域交流センター 大向:徒歩4分
・渋谷警察署 道玄坂上交番:徒歩5分
・マルエツ プチ 渋谷神泉店:徒歩2分
・ライフ 目黒大橋店:徒歩8分
・業務スーパー 目黒大橋店:徒歩8分
・渋谷区立鍋島松涛公園:徒歩5分
・渋谷区地域交流センター 大向:徒歩4分
・渋谷警察署 道玄坂上交番:徒歩5分
他の物件を探す
幡ヶ谷ベース
営業時間 10:00~20:00
定休日 水曜日
京王新線「幡ヶ谷」駅北口徒歩2分
東京都渋谷区幡ヶ谷2-6-5 梅村ビル7階
営業時間 10:00~20:00
定休日 水曜日
京王新線「幡ヶ谷」駅北口徒歩2分
東京都渋谷区幡ヶ谷2-6-5 梅村ビル7階






LINEでお問い合わせ
スタッフコメント
・8階部分
・専有面積74.01㎡、3LDK間取り
・新規内装フルリノベーション
・リビングダイニングには床暖房を設置!洋室➂の引き戸を開放すると20帖超のLDKとして利用可能