- 25,800万円
- 2LDK | 62.73㎡ | 渋谷駅 | 可
テラス渋谷美竹5階の物件レポート
■立地
最寄り駅はJRの渋谷駅で徒歩2分!渋谷駅徒歩2分です。宮益坂を上り一歩奥に入った渋谷美竹エリアです。住所は渋谷区渋谷1丁目になります。旧美竹ビルマンション建替事業として誕生しました。
■交通
最寄り駅は渋谷なので山手線、半蔵門線、副都心線、東急東横線、田園都市線、埼京線、銀座線、井の頭線という都内ならどこへでも簡単にアクセスが可能な路線のオールスターのような電車たち。車がなくても何にも困らない。表参道(銀座線)や明治神宮前(千代田線)も徒歩10分圏です。
■物件
テラス渋谷美竹は旧美竹ビルマンション建替事業として誕生した新日鉄都市開発分譲×熊谷組施工の地上17階建て196邸の都市型免震タワーレジデンスです。
住戸専有面積は33.10㎡~113.47㎡、1K~3LDKまでの幅広い間取りラインナップが揃っています。マンション1階部分はエントランスと共用部、他に店舗が入り、2階・3階はオフィス、4階から上階が住居専用フロアになっています。
■複数の強固なセキュリティ
敷地外周の擁壁に赤外線センサー、オフィスと住居の導線は厳格に隔離。風除室、オートロック、エレベーター、住戸玄関の4重セキュリティ!60か所に防犯カメラ。24時間有人管理体制(コンシェルジュサービスあり)
■共用部
レジデンシャルラウンジ、ライトスリットルーム(5つの個室空間)、広さ680㎡のベンチ型ウッドデッキを配したスカイテラス、コンシェルジュサービス、各階にゴミステーション
■駐車場
・リモコンシャッター付き地下駐車場
・月額35,000円~52,000円
【周辺コンビニ】
セブンイレブン 渋谷1丁目店 (99 m)
ローソンJPローソン渋谷郵便局店 (103 m)
ナチュラルローソン 渋谷一丁目店 (108 m)
【周辺商業施設】
渋谷ヒカリエ(徒歩4分/約290m)
渋谷スクランブルスクエア(徒歩5分/約400m)
西武渋谷店(徒歩6分/約450m)
SHIBUYA109(徒歩7分/約500m)
東急ストア 渋谷サクラステージ店(徒歩9分/約650m)
- 渋谷駅徒歩2分の圧倒的立地優位性
- 旧美竹ビルマンション建替事業として誕生した地上17階建て総戸数196邸
設備・備考等
・オートロック
・宅配ボックス
・エレベーター
・インターネット対応
・駐車場
:月額 35,000円
~52,000円
・駐輪場
:月額 400円
・バイク置場
:月額 1,500円
~3,000円
- 1階はエントランス、2・3階をオフィス、4階から上階が住居エリア
- 地上17階、総戸数196戸の都市型免震タワーレジデンス
- 充実の共用部:ライトスリットルーム、スカイテラスなど
- 風除室、エレベーターホール前のオートロック、エレベーター内、住戸玄関の4重セキュリティライン
メモ
・ペット飼育:可 (細則あり)
・新耐震基準適合物件
・フラット35利用可能
・学区域:神南小学校、松濤中学校
販売中の部屋情報
- 25,800 万円
- 5階 | 2LDK | 62.73㎡ | 可
物件概要
| 種類 | 中古マンション |
|---|---|
| 物件名 | テラス渋谷美竹5階 |
| 所在地 |
東京都渋谷区渋谷1-15-15
GoogleMap |
| 交通 | 山手線他「渋谷」駅徒歩2分 銀座線他「表参道」駅徒歩12分 副都心線他「明治神宮前」駅徒歩13分 |
| 販売価格 | 25,800万円 |
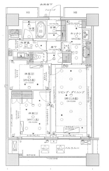
| 間取り | 2LDK |
| 専有面積 | 62.73㎡ |
| 管理費 | 17,810円 |
| 修繕積立金 | 5,630円 |
| 現況 | 空室 |
| 構造 | RC造 17階建て |
| 所在階 | 5階 |
| 築年月 | 2012年12月 |
| 総戸数 | 196戸 |
| 施工会社 | 熊谷組 |
| 管理会社 | 日鉄コミュニティ |
| 管理形態 | 全部委託(常駐) |
| 駐車場 | 月額 35,000円 ~ 52,000円 |
| 駐輪場 | 月額 400円 |
| バイク置場 | 月額 1,500円 ~ 3,000円 |
| 取引態様 | 仲介 |
| ペット飼育 | 可(細則あり) |
| POINT | 中古マンション / 千代田線 / 山手線 / 渋谷 / 表参道 / 渋谷区 / 駅近 / 近くにコンビニあります / 築浅 / 新耐震基準適合 / フラット35 / オートロック / 宅配ボックス / 大規模マンション / エレベーター / 管理状態良いね / 内廊下設計 / ペット可 / 高級分譲 / 半蔵門線 |
ローソンJPローソン渋谷郵便局店 (103 m)
ナチュラルローソン 渋谷一丁目店 (108 m)
東急ストア フードステーション渋谷キャスト店 (258 m)
Precce Shibuya DELIMARKET(プレッセ シブヤ デリマーケット) 渋谷ストリーム店 (356 m)
美竹公園 (160 m)
美竹の丘保育園 (165 m)
渋谷幼稚園 (326 m)
ブリティシュ・スクール・イン東京 渋谷キャンパス (361 m)
青山学院幼稚園 (557 m)
他の物件を探す
営業時間 10:00~20:00
定休日 水曜日
京王新線「幡ヶ谷」駅北口徒歩2分
東京都渋谷区幡ヶ谷2-6-5 梅村ビル7階






LINEでお問い合わせ
スタッフコメント
・5階部分
・専有面積62.73㎡
・2LDK