朝日広尾マンション313号室

朝日広尾マンション 外観・共用 (5)
  • 8,980万円 PriceDown ↓
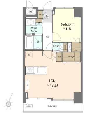
  • 1LDK + W | 46.39㎡ | 恵比寿駅 | 不可
他のお部屋も販売中

朝日広尾マンション313号室の物件レポート

■立地
明治通り沿いに建つ物件です。最寄り駅は恵比寿で徒歩7分、広尾も徒歩10分なので恵比寿と広尾を使い分け出来る立地が魅力です。

■物件
朝日広尾マンションは1987年築なので新耐震基準に適合しています。朝日建物分譲、東海興業施工のSRC造地上14階建て総戸数303邸の大型マンションです。

明治通り沿いの物件ですが、物件の北側に明治通り、南側に渋谷川とい建ち方なので南側の住戸なら明治通りの騒音はさほど気にならないレベルです。エントランスセキュリティは夜間オートロック(22時-5時)で日中は管理人さんが見守ってくれます。管理人さんは平日8:00〜17:00、土曜日は8:00〜12:00勤務体制。日中の時間帯は常住している安心感がありますね。

■物件の管理状態
総戸数303邸の大型のマンションだけに管理状態はすこぶる良いです。直近の大規模修繕工事は2012年に実施されているので近々最新の大規模修繕工事が行われる周期だと思います。それでも2022.2時点で建物全体の修繕積立金が3億2,200万円以上ストックされているので積立金不足などの不安要素はありません!

■修繕
2023.8時点でエレベーターの改修工事を実施。

設備・備考等

・オートロック (22:00~翌5:00)

・宅配ボックス

・エレベーター (2基)

・駐車場 :有

・駐輪場 :有

・コインランドリー設置
・地下駐車場:全長4,700mm、全幅1,700mm、全高1,500mm、重量1,500kg

修繕履歴

・2024年 4月 増圧給水ユニット更新工事
・2024年 3月 自動火災報知設備、防火設備更新
・2023年 8月 エレベーター改修工事
・2020年11月 鉄部塗装工事
・2014年 7月 共用部照明LED化工事
・2012年 7月 大規模修繕工事
・2011年 7月 増圧給水方式改修工事

メモ

・ペット飼育:不可

・大規模修繕工事実施済み (2012年 施工)

・修繕積立金額:33,532,700円 (25年 2月 時点)

・ペット飼育不可
・広尾小学校
・広尾中学校

販売中の部屋情報

  • 8,980 万円 PriceDown ↓
  • 3階 | 1LDK + W | 46.39㎡ | 不可
管理費 10,230円/月  修繕積立金 6,030円/月
スタッフアイコン

スタッフコメント

南東向きで眺望良好なお部屋です!

・内装フルリノベーション
・内見は現地待ち合わせ・いつでもOK
・販売スタート価格:9,180万円
他のお部屋も販売中 朝日広尾マンション313号室-間取り
部屋のPOINT フルリノベーション / リノベ完成してるよ / 陽当たり良いよ / シングル・DINKS向け / 投資用としてもいいね / 8000万円以上 / リビング広い / 価格下がりました / アフターサービス保証付き

室内写真

その他

物件概要

種類中古マンション
物件名朝日広尾マンション313号室
所在地
東京都渋谷区広尾1-11-5
GoogleMap
交通山手線「恵比寿」駅徒歩7分
埼京線「恵比寿」駅徒歩7分
日比谷線「広尾」駅徒歩10分
販売価格
8,980万円
間取り 1LDK + W
専有面積46.39㎡
管理費10,230円
修繕積立金6,030円
現況空室
構造SRC造 14階建て
所在階3階
築年月1987年1月
総戸数303戸
施工会社東海興業
管理会社朝日管理
管理形態全部委託 日勤
駐車場
駐輪場
取引態様仲介
ペット飼育 不可
POINT 中古マンション / 山手線 / 恵比寿 / 広尾 / 渋谷区 / 修繕積立金たっぷり / 住環境押し / 近くにコンビニあります / 近くにスーパーあります / 新耐震基準適合 / フラット35 / オートロック / STAFFオススメ / 大規模マンション / エレベーター / 管理良好ヴィンテージ / 管理状態良いね / SOHO相談可 / ペット不可 / 管理優秀 / 日比谷線
(周辺施設)
ローソン 広尾南店 (60 m)
ミニストップ 広尾1丁目店 (80 m)
セブンイレブン 渋谷恵比寿1丁目店 (141 m)
miniピアゴ 広尾5丁目店 (310 m)
Picard(ピカール) 広尾店 (433 m)
KINOKUNIYA entree恵比寿駅店 (543 m)
ザ・ガーデン自由が丘 アトレ恵比寿店 (574 m)
成城石井 アトレ恵比寿西館店 (574 m)
臨川四季の森 (268 m)
横浜銀行 恵比寿支店 (335 m)
千葉銀行恵比寿支店 (359 m)
みずほ銀行 恵比寿支店 (361 m)
渋谷区新橋出張所 (85 m)
新橋保育園 (80 m)
渋谷区立臨川幼稚園 (103 m)
渋谷区立臨川小学校 (161 m)
物件周辺地図 GoogleMapで見る
幡ヶ谷ベース 東京都渋谷区幡ヶ谷2-6-5 梅村ビル7階
営業時間 10:00~20:00
定休日 水曜日
【通話料無料】フリーダイヤル
0120-955-364 まずは相談してみる

他の物件を探す

見学予約 電話をかける 会員登録 お気に入り